Spacious five-bedroom house with garage, garden and energy-saving fittings.
Double-fronted five double bedrooms across three floors
This double-fronted five-bedroom detached home offers flexible living across three floors, totalling about 1,815 sq ft. The ground floor features a long kitchen/diner with integrated appliances and French patio doors plus a generous lounge and separate dining room with a large bay window — ideal for family life and entertaining. Solar panels and an EV charger are fitted, helping reduce running costs. Externally there’s a large rear garden, driveway parking and a garage.
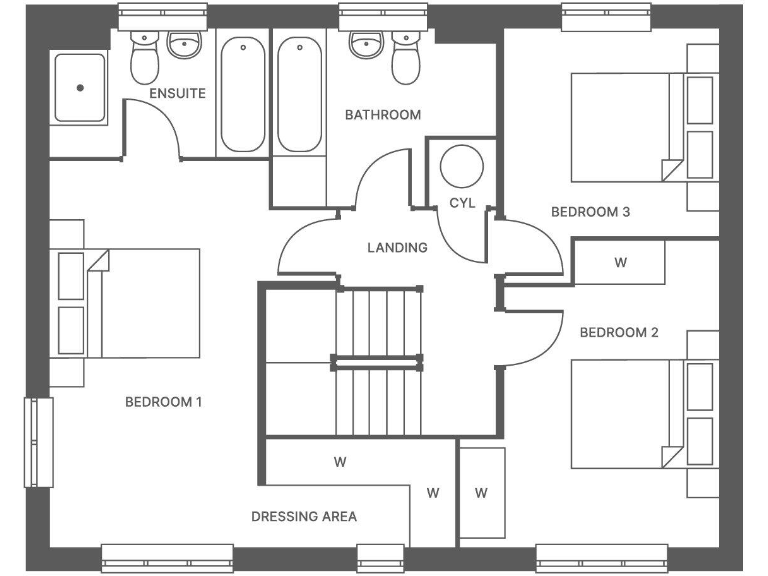
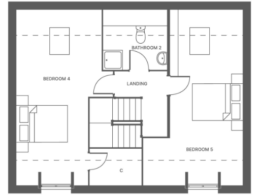
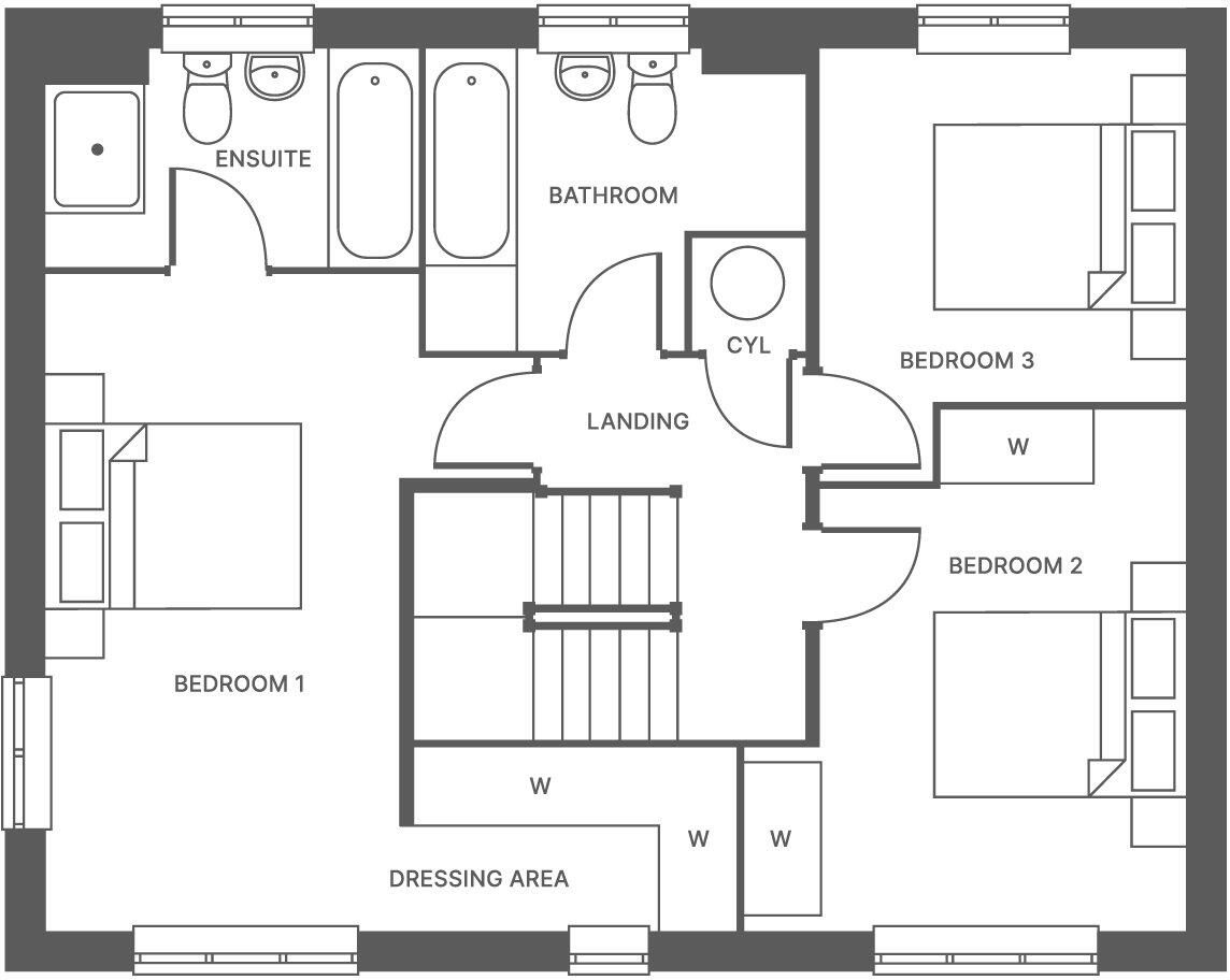
The master suite includes a dressing area and a four-piece en-suite; two further double bedrooms and a family bathroom sit on the first floor. The second floor provides two large double bedrooms with a conveniently located shower room, useful for older children or guests. The property is new build, so expect a contemporary finish and the usual snagging period associated with recently completed homes.
Incentives are available for qualifying reservations, including developer saving-schemes and short-term promotional offers (terms and conditions apply). The location at Cromwell Place, Wixams, sits between Bedford and Ampthill with good road links and about 35 minutes’ drive to Luton Airport. Local amenities include parks, schools and leisure facilities, and Bedford station offers regular services into London.
Important points to note: measurements and specification are for guidance and may change during construction. Council tax band is not yet confirmed. One nearby secondary school (Wixams Academy) is rated as Requires Improvement by Ofsted; other local primary schools are rated Good.
4 bedroom detached house for sale in Royal Gardens, Wixams, Bedford, Mk45, MK45 — £515,000 • 4 bed • 2 bath • 1361 ft²
3 bedroom semi-detached house for sale in Royal Gardens, Wixams, Bedford, MK45 — £395,000 • 3 bed • 2 bath • 1198 ft²
3 bedroom terraced house for sale in Royal Gardens, Wixams, Bedford, MK45 — £365,000 • 3 bed • 2 bath • 815 ft²
5 bedroom detached house for sale in Orchid Way,
Wixams,
Bedfordshire,
MK42 6GU, MK42 — £600,000 • 5 bed • 1 bath • 1105 ft²
3 bedroom terraced house for sale in Royal Gardens, Wixams, Bedford, MK45 — £390,000 • 3 bed • 2 bath • 1143 ft²
3 bedroom end of terrace house for sale in Royal Gardens, Wixams, Bedford, MK45 — £390,000 • 3 bed • 2 bath • 983 ft²


















































