Compact modern home with approved extensions and large garden for expansion.
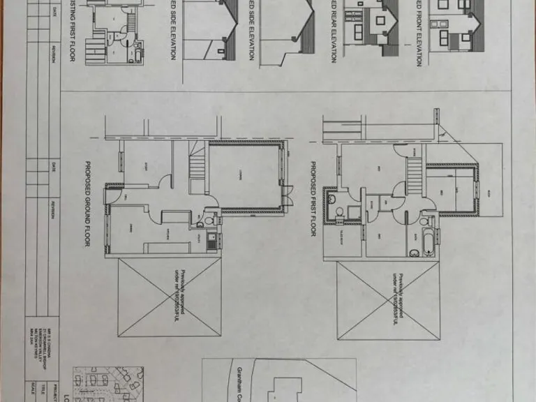
Full planning permission for rear single-storey and side two-storey extensions
Set on a large corner plot in Shenley Lodge, this two-bedroom semi-detached home offers immediate occupation or clear scope for enlargement. The property is modern-built (2003–2006), with double glazing, mains gas central heating and off-street parking. Full planning permission has been granted for a single-storey rear extension and a two-storey side extension — a straightforward way to add living space and resale value.
Internally the house is compact at about 603 sq ft and currently provides an entrance hall, lounge, kitchen, conservatory area, two bedrooms and one bathroom. That small footprint keeps running costs low (council tax described as cheap) but limits living space unless the approved extensions are implemented. Buyers should budget for build costs to realise the full potential.
The location is a practical draw: low crime, excellent mobile and fast broadband, and within catchment for several well-regarded primary and secondary schools. Local amenities and good transport links are nearby, and the sizeable rear and side garden gives room for family use, landscaping or further development subject to permissions.
This property will suit first-time buyers or small families seeking an affordable entry in a strong Milton Keynes neighbourhood, and investors or developers wanting a ready-permitted project. Be clear that unlocking value requires capital and project management to deliver the approved extensions.
2 bedroom end of terrace house for sale in Grantham Court, Shenley Lodge, Milton Keynes, Buckinghamshire, MK5 — £325,000 • 2 bed • 1 bath • 603 ft²
2 bedroom semi-detached house for sale in Bleasdale, Heelands, Buckinghamshire, MK13 — £280,000 • 2 bed • 1 bath • 1189 ft²
2 bedroom semi-detached house for sale in Northcroft, Shenley Lodge, Milton Keynes, Buckinghamshire, MK5 7AJ, MK5 — £295,000 • 2 bed • 1 bath • 642 ft²
3 bedroom semi-detached house for sale in Cleeve Crescent, Bletchley, Milton Keynes, MK3 — £375,000 • 3 bed • 1 bath • 776 ft²
4 bedroom detached house for sale in Lucius Lane, Fairfields, MK11 — £575,000 • 4 bed • 2 bath • 1413 ft²
4 bedroom semi-detached house for sale in Richborough, Milton Keynes, MK13 — £425,000 • 4 bed • 2 bath • 636 ft²






























































