Central Sandbach home with garden privacy and garage parking for family life.
Four bedrooms with master en-suite and built-in wardrobes
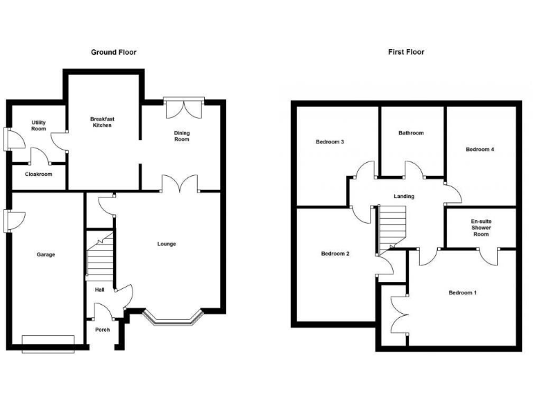
Two reception rooms plus breakfast kitchen and utility room
Private rear garden backing onto mature woodland
Internal garage and driveway parking
Approx 914 sq ft — relatively compact for a four-bedroom detached
Built 2007–2011; double glazing and mains gas central heating
Very low local crime, fast broadband and excellent mobile signal
Area shows higher local deprivation despite town-centre location
This modern detached home on Mill Pool Way offers practical family living in a central Sandbach spot. Built 2007–2011, the house presents well with two reception rooms, a fitted kitchen, utility room, and an internal garage — ready to move into for a family seeking convenience and low-maintenance finishes.
The private rear garden backs onto mature woodland, giving a leafy outlook and good privacy. Four first-floor bedrooms (including an en-suite to the master) and a family bathroom suit a growing household; built-in wardrobes and thoughtful roof profiles add character to the principal suite.
Be aware the overall internal floor area is relatively small for a four-bedroom detached (approx. 914 sq ft), so rooms feel compact compared with larger family homes. The property sits in an area with higher local deprivation statistics despite very low crime and fast broadband and excellent mobile signal — useful for home working and family connectivity.
This is a freehold, turn-key home with gas central heating, double glazing and a decent plot with off-street parking and garage. It will suit buyers who prioritise location, garden privacy and ready-to-live-in condition over very large living spaces.
4 bedroom detached house for sale in Sunnymill Drive, Sandbach, CW11 — £400,000 • 4 bed • 2 bath • 1195 ft²
4 bedroom detached house for sale in Jeremiah Wilkinson Drive, Sandbach, CW11 — £450,000 • 4 bed • 3 bath • 1459 ft²
4 bedroom detached house for sale in Dappled White Close, Sandbach, CW11 — £370,000 • 4 bed • 2 bath • 1206 ft²
4 bedroom detached house for sale in Henshall Drive, Sandbach, CW11 — £600,000 • 4 bed • 2 bath • 1900 ft²
4 bedroom detached house for sale in Swain Drive, Winterley, Sandbach, CW11 — £450,000 • 4 bed • 2 bath • 1283 ft²
4 bedroom detached house for sale in Fallows Close, Bramley Wood, Sandbach, CW11 1TH, CW11 — £470,000 • 4 bed • 3 bath • 1249 ft²






















































































































