Move-in ready with deposit support and upgraded kitchen appliances.
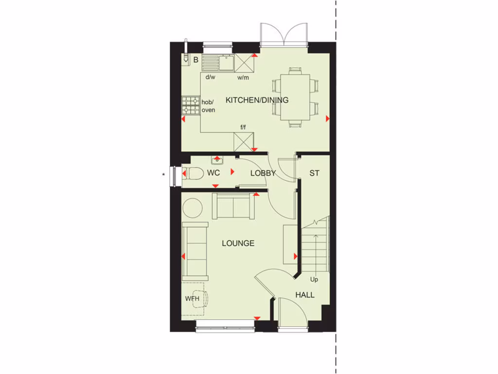
Open-plan kitchen-diner with French doors to garden
Ready-to-move-in and thoughtfully finished, this three-bedroom semi-detached new build is aimed at first-time buyers or young families seeking low-maintenance suburban living. The ground floor opens to an upgraded open-plan kitchen-diner with integrated appliances and French doors that lead directly to the rear garden, creating an easy indoor–outdoor flow for everyday life and entertaining.
Upstairs provides two double bedrooms — the main with an en suite — plus a single bedroom that works well as a study. The lounge is bright and well-proportioned, and built-in storage helps maximise the compact footprint. Outside, a driveway for two cars and a modest, easy-care garden add practical value.
You’ll benefit from a notable move-in package: £10,600 toward a deposit and integrated kitchen appliances valued at £1,970, reducing upfront costs. The home sits in a very low-crime, very affluent area with fast broadband and good local schools nearby, making it attractive for families and first-time purchasers.
Be aware this is a small house (approx. 674 sq ft) with a compact room layout and an overall smallish size; internal space is efficient rather than generous. Tenure is not specified in the details provided and should be confirmed. Overall, the property offers contemporary finishes and sensible running costs for buyers prioritising location, convenience and a turnkey new-build.
3 bedroom semi-detached house for sale in Long Lane,
Driffield,
East Riding of Yorkshire,
YO25 5HF, YO25 — £213,000 • 3 bed • 1 bath • 697 ft²
3 bedroom end of terrace house for sale in Kingsgate,
Bridlington,
East Riding of Yorkshire, YO15 3NG, YO15 — £225,000 • 3 bed • 1 bath • 684 ft²
3 bedroom detached house for sale in Long Lane,
Driffield,
East Riding of Yorkshire,
YO25 5HF, YO25 — £245,000 • 3 bed • 1 bath • 654 ft²
3 bedroom end of terrace house for sale in Long Lane,
Driffield,
East Riding of Yorkshire,
YO25 5HF, YO25 — £256,000 • 3 bed • 1 bath • 760 ft²
3 bedroom end of terrace house for sale in Long Lane,
Driffield,
East Riding of Yorkshire,
YO25 5HF, YO25 — £250,000 • 3 bed • 1 bath • 760 ft²
3 bedroom semi-detached house for sale in Cemetery Lane,
Driffield,
East Riding of Yorkshire,
YO25 5LW, YO25 — £265,000 • 3 bed • 1 bath • 803 ft²






















































