Modern sixth-floor flat with balcony, extensive amenities and excellent transport links..
- Sixth-floor modern one-bedroom, private balcony
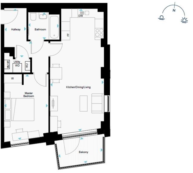
- Open-plan living with fitted kitchen and utility cupboard
- 582 sqft; efficient layout, double bedroom with wardrobes
- Concierge, rooftop terrace, gym, cinema, co-working spaces
- Leasehold: 244 years remaining; ground rent £300 pa
- Service charge approx £1,200 pa; community heating scheme
- EWS1 A1 certificate available
- Area records above-average crime; viewings recommended
Set on the sixth floor of a contemporary development in Wembley, this one-bedroom apartment offers compact modern living with a private balcony and open-plan layout. The fitted kitchen, double bedroom with built-in wardrobes and a fully tiled bathroom make efficient use of the 582 sqft footprint. An internal utility cupboard adds practical storage.
Residents benefit from a wide range of shared amenities: a rooftop terrace, concierge, fitness suite, cinema room and co-working spaces — useful for home-working and social life. Transport links are strong, with Wembley Stadium railway, Wembley Central and Wembley Park Underground all close by, plus plentiful local shops, restaurants and entertainment.
This is a leasehold property with 244 years remaining (original 250 from Dec 2019). Annual charges include a service charge of £1,200 and ground rent of £300; heating is provided via a community scheme. EWS1 form is available with an A1 rating, a positive for safety and mortgageability.
Notable negatives: the area records above-average crime, and communal service charges and ground rent should be factored into affordability calculations. Overall, the apartment suits a first-time buyer or investor seeking a well-connected modern home with strong communal facilities and straightforward maintenance needs.
2 bedroom apartment for sale in Wembley Park, HA9 — £550,000 • 2 bed • 2 bath • 668 ft²
2 bedroom apartment for sale in Elm Road, Wembley, Greater London, HA9 — £375,000 • 2 bed • 2 bath • 776 ft²
1 bedroom flat for sale in Signia Court, Wembley, Middlesex HA9 — £350,000 • 1 bed • 1 bath • 538 ft²
1 bedroom flat for sale in Palace Arts Way, Wembley, HA9 — £365,000 • 1 bed • 1 bath • 520 ft²
2 bedroom apartment for sale in Quadrant Court, Empire Way, Wembley, HA9 — £400,000 • 2 bed • 1 bath • 722 ft²
2 bedroom apartment for sale in 341 High Road, Wembley, HA9 — £465,000 • 2 bed • 2 bath


























































