Modern village living with garden, parking and excellent connectivity for families.
High-spec open-plan kitchen and dining space
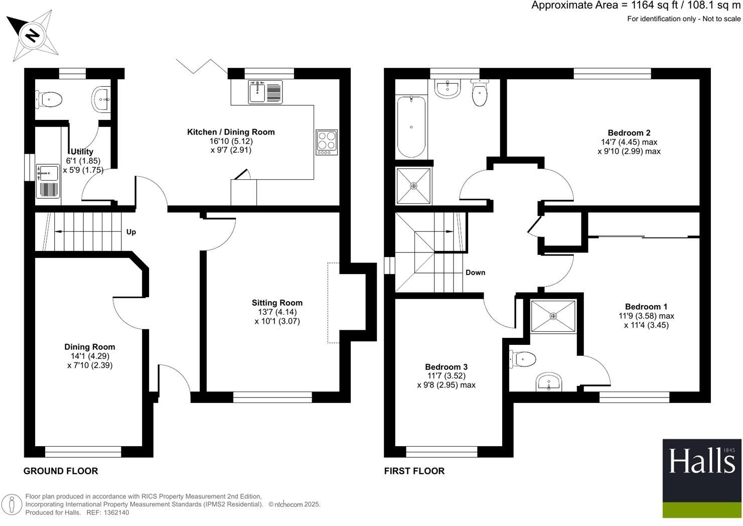
This modern three-bedroom detached home, built in 2020, offers family-friendly living across two storeys with about 1,141 sq ft of well-planned space. The heart of the house is a high-spec open-plan kitchen/dining area with garden access, complemented by a separate lounge and a flexible study/snug — useful for home working or children's play. The principal bedroom includes an en-suite, and two further bedrooms share a contemporary family bathroom.
Externally the plot is practical: an enclosed lawned rear garden with a patio provides a safe outdoor space for children, while a tarmac driveway offers off-street parking for several vehicles. The house is heated by an LPG-fired boiler and radiators (bulk LPG supply), and construction details show average thermal performance for its age.
The property sits in the village of Four Crosses, convenient for a primary school, local shop and village amenities, with road links to Oswestry, Welshpool and beyond. Mobile signal and broadband speeds are reported excellent and fast respectively, supporting remote working and family connectivity.
Notable considerations are factual: the development currently has ongoing building works that may cause some disruption; the property relies on bulk LPG rather than mains gas; and the wider area is classified as very deprived despite very low local crime. These are practical factors to weigh alongside the home's modern specification and convenient village location.
4 bedroom detached house for sale in Maes Sarn Wen, Four Crosses, Llanymynech, SY22 — £360,000 • 4 bed • 2 bath • 1239 ft²
4 bedroom detached house for sale in Maes Sarn Wen, Four Crosses, Llanymynech., SY22 — £359,950 • 4 bed • 2 bath • 1392 ft²
5 bedroom detached house for sale in Parc Hafod, Four Crosses, Llanymynech, Powys, SY22 — £460,000 • 5 bed • 3 bath
3 bedroom detached house for sale in Parc Hafod, Four Crosses, Llanymynech, SY22 — £240,000 • 3 bed • 1 bath • 880 ft²
4 bedroom house for sale in Parc Hafod, Four Crosses, Llanymynech, SY22 — £380,000 • 4 bed • 2 bath • 1566 ft²
3 bedroom detached bungalow for sale in Four Crosses, Llanymynech, SY22 — £320,000 • 3 bed • 2 bath • 1492 ft²


























































































