**Standout Features:**
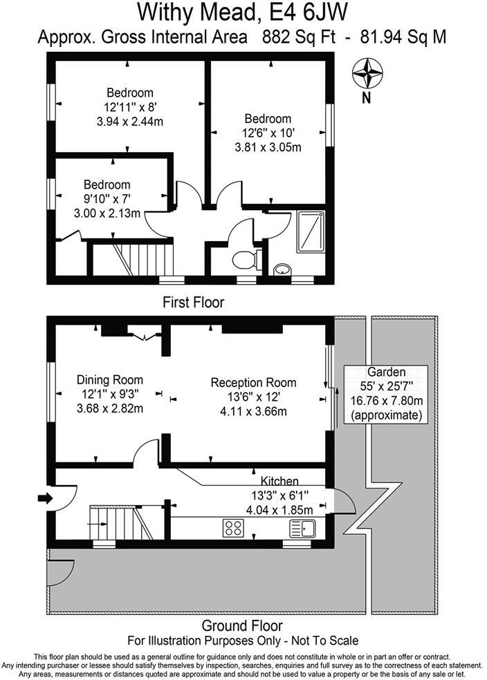
- Three spacious bedrooms.
- Interconnecting reception rooms ideal for family gatherings.
- Practical galley kitchen.
- First-floor shower room with a separate WC.
- Approx. 55ft rear garden with side access.
- Double glazing and gas central heating.
- Chain-free sale for a smoother transaction.
- Excellent transport links to London, with Chingford Overground Station nearby.
**Potential Concerns:**
- Requires modernisation to maximise its full potential.
- Above-average crime rate in the local area.
Nestled in a quiet residential turning of Withy Mead, Chingford, this three-bedroom semi-detached house offers a fantastic opportunity for those looking to create their dream home. With an appealing layout featuring interconnecting reception rooms and a practical galley kitchen, this property is primed for both family comfort and entertaining. The first-floor shower room and separate WC add convenience for busy mornings, while the ample 55ft rear garden presents options for outdoor relaxation or future expansion.
Located within easy reach of local amenities and the vibrant shopping areas of Chingford Hatch and Station Road, you'll enjoy a blend of urban life and serene green spaces, like the vast Epping Forest nearby. Families will appreciate the proximity to quality schools, ensuring education is never far from reach. While the property requires renovation, the potential is immense—imagine transforming this into your ideal family sanctuary.
This chain-free opportunity won’t last long in today’s market. Don't miss your chance to secure a home that offers exclusivity, comfort, and the potential for future growth in a community-oriented area. Envision your bright future here!
3 bedroom semi-detached house for sale in Withy Mead, London, E4 — £499,995 • 3 bed • 1 bath • 752 ft²
3 bedroom house for sale in Ainslie Wood Gardens, Chingford, E4 — £575,000 • 3 bed • 1 bath • 1202 ft²
3 bedroom semi-detached house for sale in The Bramblings, Chingford, London, E4 — £650,000 • 3 bed • 1 bath • 892 ft²
3 bedroom house for sale in Ainslie Wood Gardens, Chingford, E4 — £575,000 • 3 bed • 1 bath • 1063 ft²
3 bedroom house for sale in Eatons Mead, Chingford, E4 — £525,000 • 3 bed • 1 bath • 965 ft²
4 bedroom terraced house for sale in Ainslie Wood Road, Chingford, E4 — £525,000 • 4 bed • 1 bath • 1084 ft²


























































































