Chain-free one-bedroom flat in Art Deco mansion block
973 years remaining on lease — no short-lease issues
Heating and hot water included via community scheme
Private communal garden; onsite caretaker for upkeep
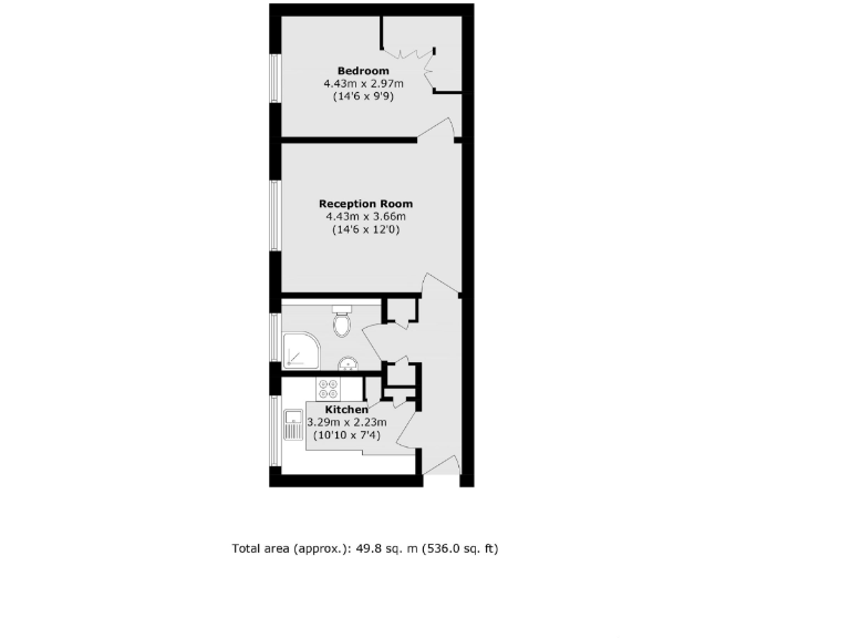
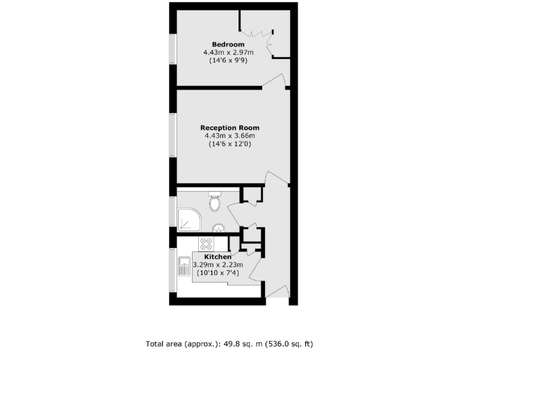
Spacious reception with wood floors and integrated kitchen
Compact 536 sq ft — best for single occupant or couple
Service charge £4,449 pa — above-average ongoing cost
Solid brick construction; likely limited wall insulation
Set within a handsome Art Deco mansion block just under 500 metres from St John’s Wood tube, this chain-free one-bedroom apartment suits a first-time buyer seeking a well-located London pied-à-terre. The flat offers a generous reception room with wood floors, a separate kitchen with integrated appliances and good built-in storage. Residents benefit from a private communal garden and onsite caretaker.
Practical running costs include heating and hot water provided through the building’s community scheme, simplifying bills. The lease is exceptionally long at 973 years, removing typical short-lease concerns and making mortgage and resale straightforward. The property sits in a very affluent, low-crime area with excellent mobile signal and easy access to local shops, cafés and transport.
Notable downsides are the above-average service charge (£4,449 pa) and council tax (Band E), which add materially to ongoing costs. The block dates from 1900–1929 with solid brick walls assumed to lack modern insulation, so energy performance may be lower than newer builds. The apartment is compact at 536 sq ft, so buyers needing generous storage or a separate dining area should view to confirm layout suitability.
1 bedroom apartment for sale in St John's Wood Court, St John's Wood Road, London, NW8 — £600,000 • 1 bed • 1 bath • 716 ft²
1 bedroom flat for sale in Abbey Road, St John's Wood, NW8 — £600,000 • 1 bed • 1 bath • 593 ft²
1 bedroom flat for sale in Boyton House, St John's Wood, NW8 — £450,000 • 1 bed • 1 bath • 552 ft²
1 bedroom apartment for sale in Langford Court, Abbey Road, St John's Wood, London, NW8 — £530,000 • 1 bed • 1 bath • 440 ft²
1 bedroom apartment for sale in Abbey Road, St Johns Wood, NW8 — £480,000 • 1 bed • 1 bath • 452 ft²
2 bedroom flat for sale in Finchley Road, St Johns Wood, NW8 — £550,000 • 2 bed • 1 bath • 772 ft²






















































