Bright, family-focused new build with garage and garden ready to move into.
Detached double garage and block-paved driveway for secure parking
Spacious open-plan kitchen/dining with French doors to garden
Master suite with dressing area, Hammonds wardrobes and en-suite
Separate family room usable as snug, playroom or home office
NHBC 10-year warranty; new-build, chain-free sale
Decent plot size and private rear garden for family use
Tenure not specified — buyer should verify ownership details
Small-town fringe location; average crime and commuter links
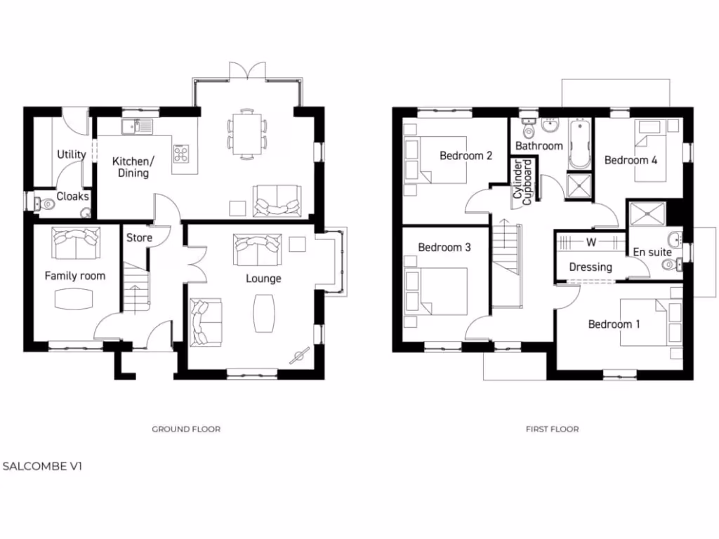
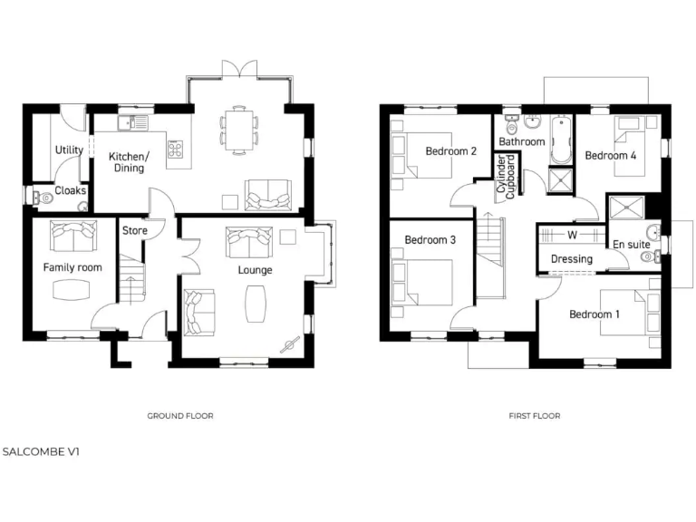
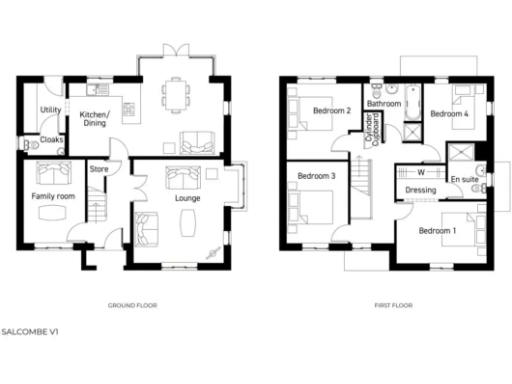
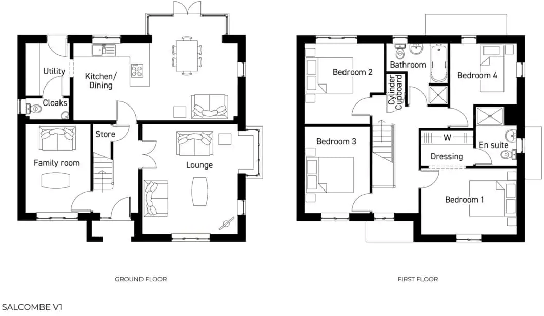
This four-bedroom family home on Kirklington Road is a modern, thoughtfully laid-out property designed for everyday family life and entertaining. The ground floor’s open-plan kitchen and dining area with French doors creates a bright indoor–outdoor flow, while a separate family room offers flexible space for a snug, playroom or home office. A practical utility and downstairs cloakroom help keep daily routines organised.
Upstairs, the master suite includes a dressing area with fitted Hammonds wardrobes and a private en-suite; three further bedrooms and a contemporary family bathroom provide comfortable sleeping accommodation for children or guests. The house comes with a detached double garage, block-paved driveway and a decent plot size that’s well suited to family needs.
Built with an NHBC 10-year warranty and sold chain-free, the home is new build quality in a semi-rural development offering fast broadband and sensible commuter links. Local schools rated Good and open green spaces nearby add to the family appeal.
Note the property’s tenure is not specified in the details provided. The development occupies a small-town fringe location with average local crime levels and an overall rural employment and retirees profile — factors to consider if you prioritise urban amenities or public transport frequency.
4 bedroom detached house for sale in Bilsthorpe Chase
Kirklington Road
Bilsthorpe
NG22 8SH, NG22 — £321,000 • 4 bed • 1 bath • 837 ft²
4 bedroom detached house for sale in Bilsthorpe Chase
Kirklington Road
Bilsthorpe
NG22 8SH, NG22 — £376,000 • 4 bed • 1 bath • 1199 ft²
4 bedroom detached house for sale in Bilsthorpe Chase
Kirklington Road
Bilsthorpe
NG22 8SH, NG22 — £356,000 • 4 bed • 1 bath • 1136 ft²
4 bedroom detached house for sale in Bilsthorpe Chase
Kirklington Road
Bilsthorpe
NG22 8SH, NG22 — £396,000 • 4 bed • 2 bath • 1123 ft²
4 bedroom detached house for sale in Brand Lane,
Stanton Hill,
Sutton-In-Ashfield,
NG17 3GH, NG17 — £399,000 • 4 bed • 2 bath • 1533 ft²
2 bedroom semi-detached house for sale in Bilsthorpe Chase
Kirklington Road
Bilsthorpe
NG22 8SH, NG22 — £199,000 • 2 bed • 1 bath • 648 ft²














































