Large garage and clear short-completion terms suit renovators or investors.
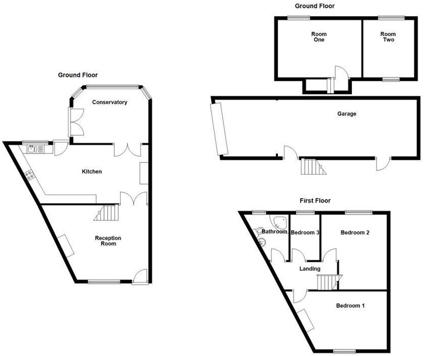
Three bedrooms with open-plan dining/kitchen on ground floor
Large two-storey detached garage/workshop — high versatility
Sold at online auction; completion strictly within 28 days
Buyer’s premium £5,000 (inc VAT) payable in addition to price
Leasehold tenure — check remaining term and charges in legal pack
Single bathroom only; likely scope for modernisation
EPC rating D; double glazing present (install date unknown)
Situated in very deprived area but with very low crime and fast broadband
A spacious three-bedroom end-terrace in Bury, offered at auction with strong potential for rental or resale after improvement. The property includes a large two-storey detached garage/workshop — a rare asset that suits storage, conversion to additional living space (subject to permissions), or a trades/hobby workspace.
Inside, the ground floor flows from a traditional reception room into an open-plan dining area and a modern-fitted kitchen with stainless steel appliances and recessed lighting. Three well-proportioned first-floor bedrooms and a single bathroom provide straightforward family or tenant accommodation. Heating is by mains-gas boiler and radiators; glazing is double but install date is unknown.
Important selling details are factual and material: this is a leasehold property being sold via online auction. A non-negotiable buyer’s premium of £5,000 (inc. VAT) is payable on completion, completion is required within 28 days, and the reserve price is unpublished and above the stated starting price. The EPC is rated D.
The house sits in a very deprived area but benefits from very low crime, excellent mobile signal and fast broadband — useful for rental demand and modern living. Local amenities include supermarkets, schools (several rated Good), public transport, and leisure facilities. Buyers should budget for updating and check the legal pack and searches before bidding.
3 bedroom terraced house for sale in 3 Bradford Terrace, Bury, BL9 0TT, BL9 — £125,000 • 3 bed • 1 bath • 1249 ft²
3 bedroom terraced house for sale in Waterfold Lane, Bury, Greater Manchester, BL9 — £100,000 • 3 bed • 1 bath • 827 ft²
2 bedroom terraced house for sale in Bolton Road, Bury, Greater Manchester, BL8 — £150,000 • 2 bed • 1 bath • 996 ft²
3 bedroom terraced house for sale in Garstang Avenue, Bolton, Greater Manchester, BL2 6JN, BL2 — £120,000 • 3 bed • 1 bath • 743 ft²
1 bedroom terraced house for sale in 50 Nuttall Lane, Ramsbottom, BL0 9JP, BL0 — £95,000 • 1 bed • 1 bath • 641 ft²
Mixed use property for sale in 34 - 40 Bridge Street, Bury, Lancashire, BL9 6HH, BL9 — £850,000 • 1 bed • 1 bath










































































































































































