**Standout Features:**
- Three-bedroom semi-detached home with beautiful period features
- Potential for rear and loft extensions
- Recently renovated bathroom with contemporary finishes
- Spacious garden ideal for entertaining and potential home office
- Excellent transport links and nearby schooling options
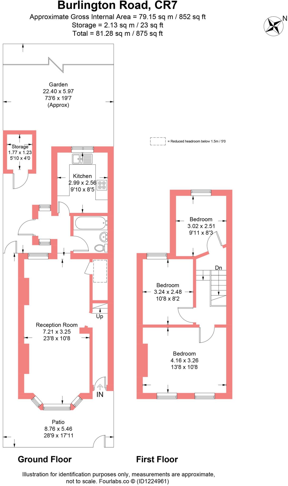
This charming three-bedroom semi-detached period home on Burlington Road offers a perfect blend of character and modern living, ideal for families and young professionals alike. With its stunning original sash windows, high ceilings, and exquisite period fireplace, the warm ambiance of the living space is undeniable. The practical U-shaped kitchen overlooks a delightful garden, which presents an excellent opportunity for outdoor gatherings.
Upstairs, you’ll find three generously sized bedrooms, with the potential for loft extension to accommodate a fourth bedroom or an additional bathroom. While the property has recently seen renovations, a new owner may wish to consider further updates to truly make it their own. Notably, the area boasts a strong community vibe, coupled with outstanding local schools and lush parks, making it an excellent choice for family living.
Although the surrounding environment offers conveniences, the area does face some socio-economic challenges. However, with excellent transport links to London and proximity to the vibrant Crystal Palace triangle, this residence is an ideal investment for those seeking comfort, community, and future growth. Don’t wait too long—properties with this much charm and potential don’t stay on the market! Book your viewing online 24/7.















































































