Extended family home with huge sunny garden, parking and top school links.
Extended ground-floor with vaulted ceiling and en suite
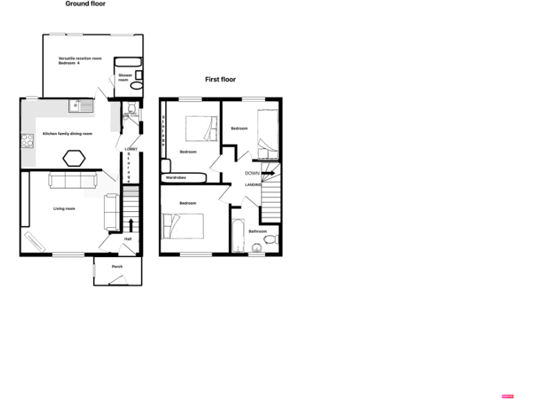
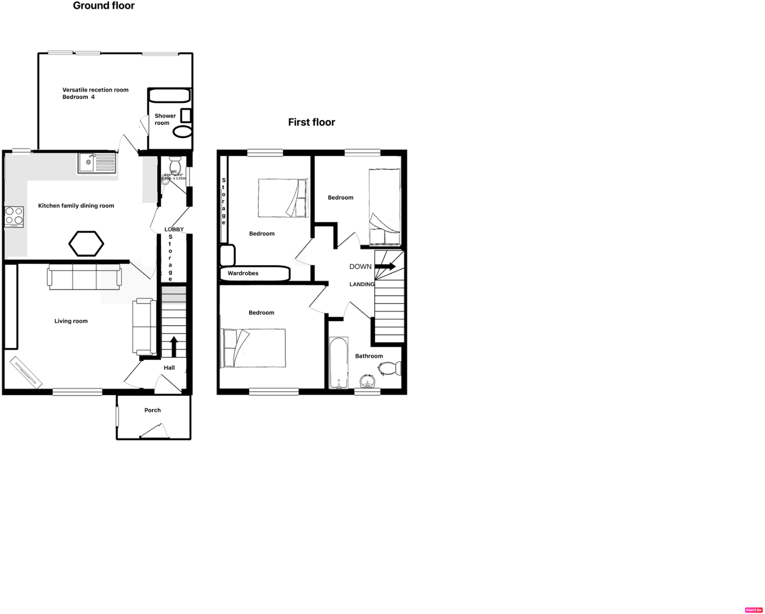
This extended four-bedroom semi-detached home sits in a highly sought Bishop’s Stortford cul-de-sac, within easy walking distance of the mainline station and top-rated schools. The property offers sensible family accommodation across two floors, including a bright living room, large kitchen/dining area and a versatile ground-floor reception that currently serves as a fourth bedroom with a luxury en suite. Recent extension (2022) adds contemporary space and high vaulted ceilings with French doors onto the garden.
The rear garden is a standout: nearly 80ft, sunny aspect, low-maintenance lawn, raised beds, entertaining area, greenhouse and two powered sheds. Practical features include off-street block-paved parking, double glazing (installed post-2002), mains gas boiler and radiators, and freehold tenure. The home’s footprint is compact (circa 840 sq ft), so layout works best for buyers seeking efficient family living rather than large, open-plan expanses.
Notable points to consider: the house dates from the early 20th century with solid brick walls and assumed lack of cavity insulation, so there may be scope (and cost) to improve thermal performance. Overall size is described as small and floor area limits major extensions without planning consent. Crime is average for the area. On balance this is a tidy, well-presented family home in an extremely convenient and affluent location, with clear potential to improve energy efficiency and personalise finishes.
4 bedroom semi-detached house for sale in Parsonage Lane, Bishop's Stortford, CM23 — £550,000 • 4 bed • 2 bath • 1496 ft²
4 bedroom semi-detached house for sale in Audrey Gardens, Bishop's Stortford, Hertfordshire, CM23 — £490,000 • 4 bed • 1 bath • 1098 ft²
4 bedroom detached house for sale in Delphian Way, Bishop's Stortford, Hertfordshire, CM23 — £625,000 • 4 bed • 1 bath • 1406 ft²
4 bedroom detached house for sale in Kestrel Gardens, Bishop's Stortford, CM23 — £620,000 • 4 bed • 1 bath • 1334 ft²
4 bedroom semi-detached house for sale in OPEN TO OFFERS -Linkside Road, Bishop's Stortford, Hertfordshire, CM23 — £525,000 • 4 bed • 1 bath • 1268 ft²
3 bedroom semi-detached house for sale in Proctors Way, Bishop's Stortford, Hertfordshire, CM23 — £585,000 • 3 bed • 2 bath • 1425 ft²






















































































