Move in now to a modern, energy-smart home near green spaces.
South‑west facing private garden with good afternoon/evening sun
Step into a ready-to-move-in two double bedroom terraced home set on Royal Gardens, Wixams. The ground floor offers a light-filled lounge/diner with patio doors leading to a generous south‑west facing garden — ideal for evening sun and low-maintenance outdoor space. The compact modern kitchen includes integrated appliances ready for everyday use.
Practical, energy-conscious features include fitted solar panels and an EV car charger, which can help reduce running costs. Off-street parking and a sensible floorplan make this property a straightforward choice for first-time buyers, downsizers or buy-to-let investors seeking contemporary, low-maintenance living in a growing community.
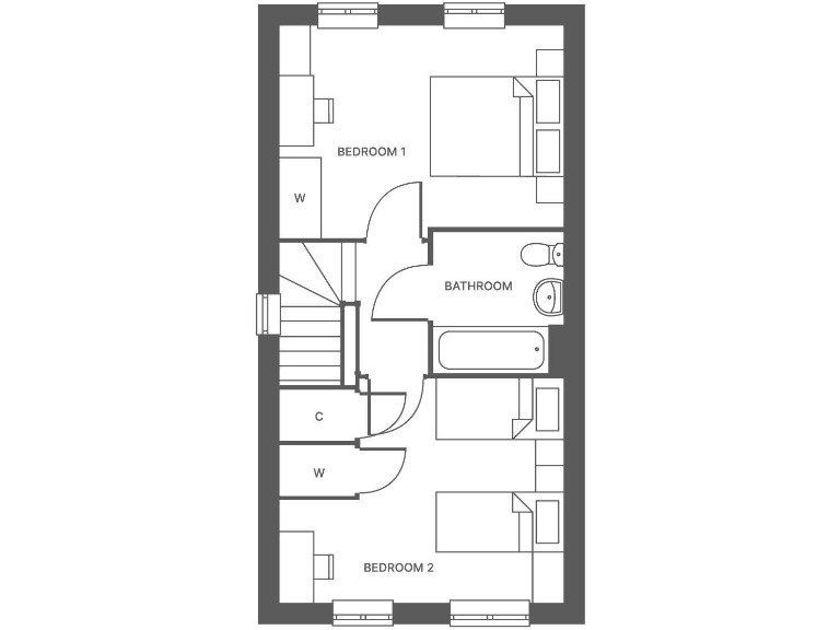
There is one family bathroom and the property measures approximately 796 sq ft, so room sizes are sensible rather than expansive. Some photos and measurements are illustrative and provisional while the development completes; buyers should confirm final specifications. Local primary schools have Good Ofsted ratings, though the nearby secondary school is currently rated Requires Improvement.
An optional purchase-support package is available for qualifying October reservations and may include deposit, stamp duty, mortgage or legal cost contributions and an assisted-move service — check terms and availability. Commuters will appreciate easy access to the A6/A421 and Bedford station for rail journeys to London.
2 bedroom semi-detached house for sale in Royal Gardens, Wixams, Bedford, Mk45, MK45 — £337,500 • 2 bed • 1 bath
3 bedroom semi-detached house for sale in Royal Gardens, Wixams, Bedford, MK45 — £395,000 • 3 bed • 2 bath • 1198 ft²
3 bedroom terraced house for sale in Royal Gardens, Wixams, Bedford, MK45 — £365,000 • 3 bed • 2 bath • 815 ft²
3 bedroom detached house for sale in Royal Gardens, Wixams, Bedford, MK45 — £397,500 • 3 bed • 2 bath • 983 ft²
3 bedroom semi-detached house for sale in Royal Gardens, Abbey New Homes, Wixams, MK45 — £370,000 • 3 bed • 2 bath • 845 ft²
4 bedroom detached house for sale in Royal Gardens, Wixams, Bedford, Mk45, MK45 — £515,000 • 4 bed • 2 bath • 1361 ft²






































