New-build three-bed with garden, car port and NHBC warranty.
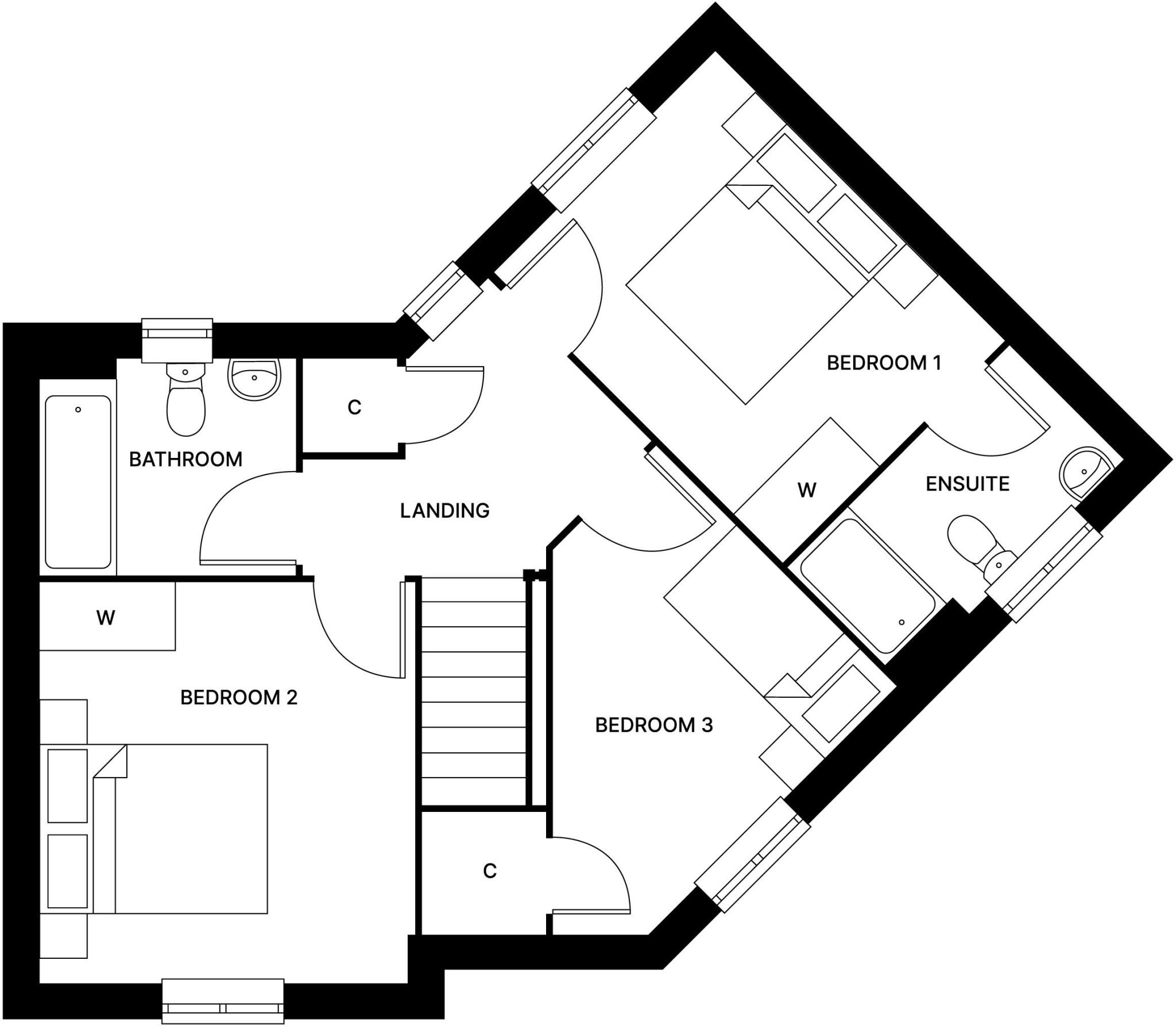
Three bedrooms with principal en-suite shower room
A contemporary three-bedroom detached home on a decent plot in Borden, ideal for families seeking a low-maintenance new build. The open-plan kitchen/diner with integrated appliances flows to a separate, light-filled lounge with French doors onto the rear garden — practical for everyday living and entertaining. The principal bedroom includes an en-suite; bedrooms two and three are good-sized and share a modern family bathroom finished with Roca sanitaryware.
Built using traditional brick-and-block methods, the property comes with a 10-year NHBC warranty and a two-year customer-care service, offering reassurance on build quality. Off-road parking includes a car port plus two spaces. Room sizes are modest but well planned across approximately 692 sq ft, making efficient use of space.
Note the immediate area is a small, ageing rural neighbourhood with above-average crime statistics and several local primary schools rated as 'Requires improvement'. The house is freehold and new build, so there should be low initial maintenance, but the compact overall size may not suit buyers wanting large reception spaces. Broadband speeds are fast and mobile signal is average.
Overall, this is a modern, low-upkeep family home in a quiet settlement, best suited to downsizers, first-time buyers wanting freehold ownership, or families prioritising a new build warranty and manageable running costs.
3 bedroom detached house for sale in Chestnut Grove, Borden, Sittingbourne, Kent, ME9 — £440,000 • 3 bed • 2 bath • 687 ft²
4 bedroom detached house for sale in Chestnut Grove, Borden, Sittingbourne, Kent, ME9 — £500,000 • 4 bed • 2 bath • 1352 ft²
3 bedroom semi-detached house for sale in Chestnut Grove, Chestnut Street, Borden, Sittingbourne, Kent, ME9 — £400,000 • 3 bed • 2 bath • 687 ft²
3 bedroom semi-detached house for sale in Chestnut Grove, Borden, Sittingbourne, Kent, ME9 — £390,000 • 3 bed • 2 bath • 583 ft²
3 bedroom detached bungalow for sale in Wises Lane, Borden, Sittingbourne, Kent, ME9 — £525,000 • 3 bed • 1 bath • 905 ft²
3 bedroom semi-detached house for sale in Chestnut Grove, Chestnut Street, Borden, Sittingbourne, Kent, ME9 — £248,000 • 3 bed • 2 bath • 894 ft²






















































