Large south-facing garden and flexible living for growing families.
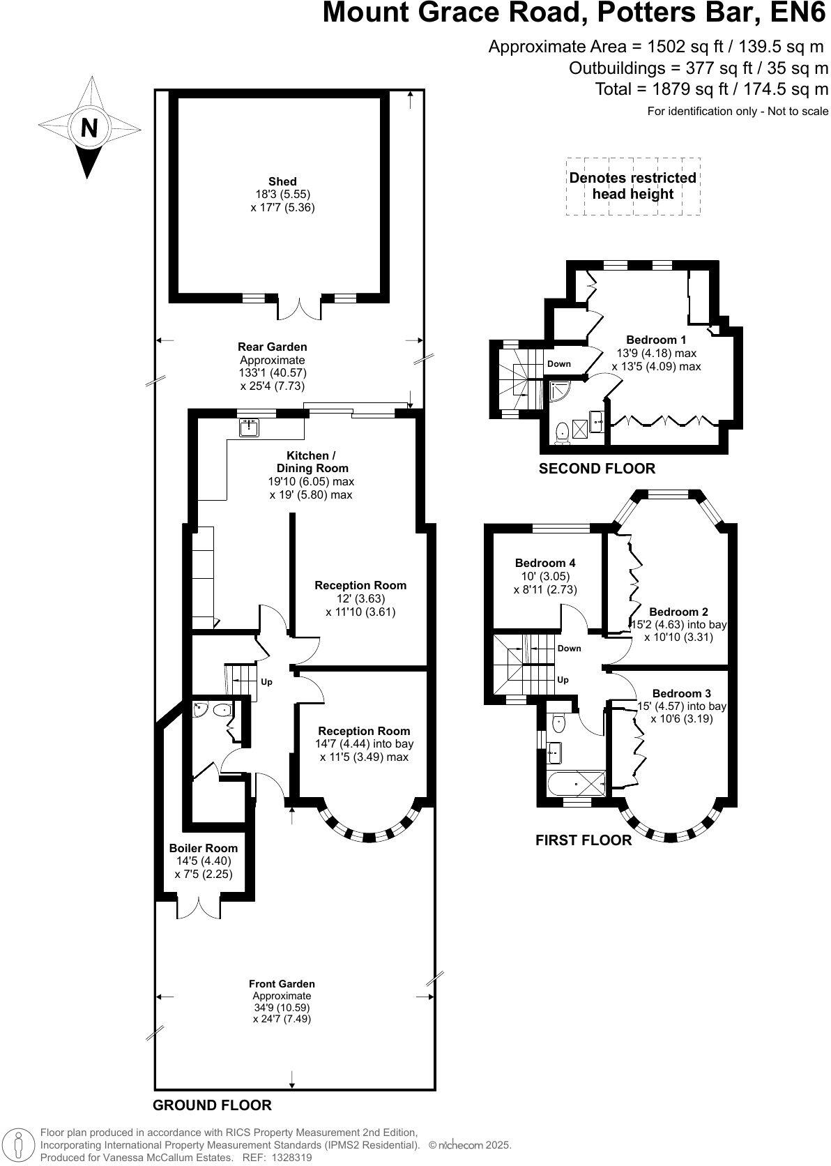
Nearly 1,500 sq ft over three floors
A spacious 1930s semi-detached family home arranged over three floors, offering almost 1,500 sq ft of flexible living space. The ground floor features a contemporary open-plan kitchen/dining area with a separate family room and a front reception room, plus a convenient cloakroom and useful boiler/storage room. Double glazing was installed post-2002 and mains gas central heating serves the house.
The rear plot is a standout asset — a south-facing garden of approximately 140ft with a large shed provides exceptional outdoor space and scope for landscaping or extension (subject to consents). A private driveway offers off-street parking. Local amenities, good primary schools and an excellent selective secondary are all within easy reach, making this well-situated for family life.
Notable considerations: the brick walls are original solid construction and may lack cavity insulation, so upgrading thermal performance could be advised. There is a medium flood risk in the area and the property sits in a higher council tax band. One nearby secondary (Mount Grace School) is rated as requiring improvement, though other highly regarded schools are close by. Overall this is a roomy family home with strong outdoor appeal and renovation potential for improved energy efficiency and modernisation.
4 bedroom semi-detached house for sale in Sunnybank Road, Potters Bar, EN6 — £750,000 • 4 bed • 2 bath • 1557 ft²
4 bedroom semi-detached house for sale in Holloways Lane, Welham Green, AL9 — £760,000 • 4 bed • 2 bath • 1424 ft²
4 bedroom semi-detached house for sale in Oulton Crescent, Potters Bar, EN6 — £745,950 • 4 bed • 1 bath • 1459 ft²
4 bedroom semi-detached house for sale in Torrington Drive, Potters Bar, EN6 — £700,000 • 4 bed • 1 bath • 1412 ft²
4 bedroom semi-detached house for sale in Oakmere Avenue, Potters Bar, EN6 — £700,000 • 4 bed • 2 bath • 1614 ft²
5 bedroom detached house for sale in Westwood Close, Potters Bar, Hertfordshire, EN6 — £1,800,000 • 5 bed • 6 bath • 4017 ft²














































































