Extended layout with garden room, ideal for first-time buyers and commuters.
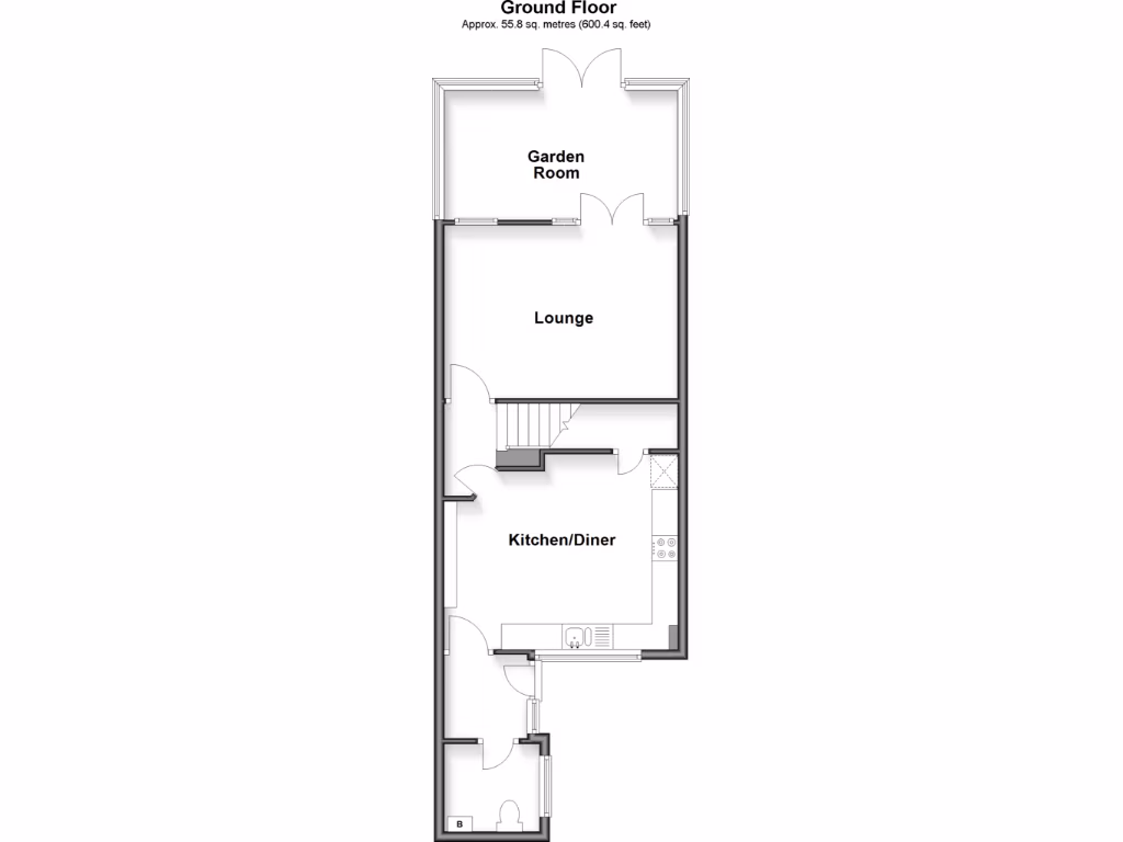
Extended rear creating garden room and larger kitchen/diner
Approximately 453 sq ft internal space — compact rooms throughout
Small, low-maintenance front and rear gardens with decking and patio
Cul-de-sac location with excellent motorway access for commuters
Good nearby schools including an Outstanding secondary option
Freehold tenure; double glazing and gas central heating installed
Area listed as deprived; local demographic skewed to constrained renters
Buyers should verify extension consents and check fixtures are working
Quiet cul-de-sac living meets practical family accommodation in this extended two-bedroom terraced home. The single-storey rear extension creates a bright garden room and expands the kitchen/diner, giving useful entertaining space and a flexible ground-floor layout. Double glazing and gas central heating provide everyday comfort, and fast broadband and excellent mobile signal suit modern working-from-home needs.
Outside offers a small but low-maintenance front and rear garden with decking and patio — big enough for children to play and for social gatherings. The property sits close to strong motorway links for commuters, and several well-rated primary and secondary schools are within easy reach, making this attractive for first-time buyers and growing families.
Practical points to note: the overall internal space is small (approximately 453 sq ft) and the plot is limited, so storage and expansion options are constrained. The area scores as more deprived locally, and the wider demographic includes renting, hard-pressed workers. Prospective buyers should verify that the rear extension has the required planning/building regulation consents and confirm fixtures, fittings and services are in working order.
2 bedroom terraced house for sale in Burghclere Drive, Maidstone, Kent, ME16 — £300,000 • 2 bed • 1 bath • 593 ft²
2 bedroom end of terrace house for sale in Cheshire Road, Maidstone, Kent, ME15 — £240,000 • 2 bed • 1 bath • 528 ft²
3 bedroom terraced house for sale in Connaught Road, Chatham, Kent, ME4 — £230,000 • 3 bed • 1 bath • 765 ft²
2 bedroom terraced house for sale in Olivine Close, Sittingbourne, Kent, ME10 — £260,000 • 2 bed • 1 bath • 498 ft²
3 bedroom terraced house for sale in Perry Street, Maidstone, Kent, ME14 — £275,000 • 3 bed • 1 bath • 542 ft²
2 bedroom terraced house for sale in Sheridan Close, Maidstone, Kent, ME14 — £185,500 • 2 bed • 1 bath • 453 ft²










































































