**Standout Features:**
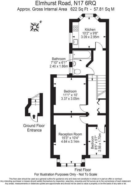
- 2-bedroom flat located on Elmhurst Road, London, N17
- Modern design with a bright reception room
- Two bathrooms for added convenience
- Excellent access to public transport and local amenities
- Total size of 622 square feet
**Concerns:**
- Some rooms require renovation—particularly the small, dated bathroom.
- Limited outdoor space associated with the flat.
This inviting two-bedroom flat on Elmhurst Road is an ideal choice for professionals and small families seeking a vibrant urban lifestyle in London. The bright reception room creates a perfect space for relaxation and entertaining, while the presence of two bathrooms adds practicality to everyday living. With modern finishes throughout, the flat offers a comfortable retreat in a bustling area filled with local amenities, from shops and cafes to parks.
Although the interior showcases a delightful layout, certain areas, particularly the cozy bathroom, show signs of wear and may require renovation to fully realize their potential. Additionally, the flat does not include private outdoor space, which some buyers may consider a downside. However, with excellent transport links just a short walk away, commuting and enjoying all that the city has to offer is made simple.
This property presents a unique opportunity for first-time buyers or investors looking to tap into London's dynamic market. Don’t miss your chance to view this flat—it represents an exceptional blend of comfort and potential in a highly desirable location!
2 bedroom flat for sale in Woodrow Court, Heybourne Road, Tottenham, N17 — £275,000 • 2 bed • 1 bath • 431 ft²
2 bedroom flat for sale in Waverley Road, London, N17 — £312,000 • 2 bed • 1 bath • 912 ft²
2 bedroom flat for sale in Mount Pleasant Road, First Floor Flat, London, N17 — £420,000 • 2 bed • 1 bath • 614 ft²
1 bedroom flat for sale in Boundary Road, London, N22 — £300,000 • 1 bed • 1 bath • 500 ft²
3 bedroom flat for sale in Carlingford Road, London, N15 — £475,000 • 3 bed • 1 bath
2 bedroom flat for sale in Etherley Road, South Tottenham, London, N15 — £385,000 • 2 bed • 1 bath • 673 ft²






































