**Standout Features:**
- Four spacious bedrooms, including a master suite
- Recently refurbished to a high standard
- Versatile converted garage currently used as an extra bedroom
- Low maintenance private garden with a large artificial lawn
- Convenient off-street parking for multiple vehicles
**Overview:**
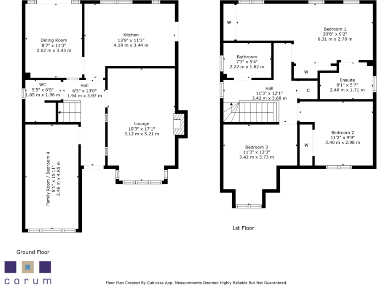
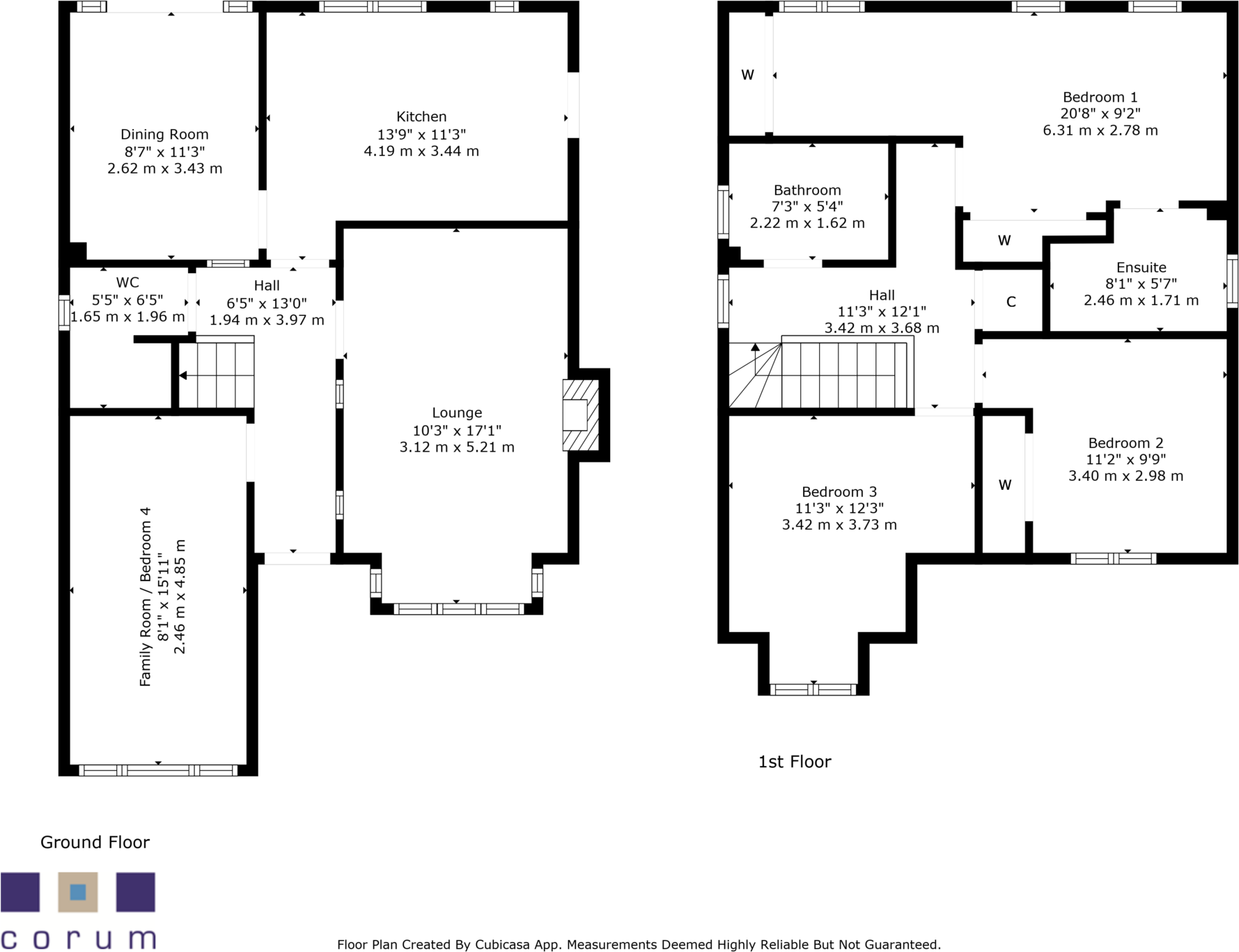
Discover this beautifully refurbished detached family home in the highly sought-after Lindsayfield area of East Kilbride. Spanning 1313 square feet, this modern residence boasts four well-appointed bedrooms and three bathrooms, offering flexible accommodation perfect for growing families. The heart of the home features a bright lounge, stylish kitchen with dining options, and a converted garage for extra versatility—ideal for a guest room or study.
Step outside into your private, low-maintenance garden, ideal for entertaining or family activities, complete with a sunny patio and spacious artificial lawn. This property not only reflects contemporary living but also provides practical amenities like gas central heating, double glazing, and ample driveway parking.
Situated in a comfortable suburb, this home is close to local schools, parks, and essential amenities, making it perfectly suited for families and first-time buyers alike. The potential to convert the upstairs layout back into a five-bedroom arrangement adds to this home's flexibility. With prime access to transport links connecting you to Glasgow and beyond, opportunities like this are rare—act quickly to secure your dream home!
4 bedroom detached house for sale in Bloomingdale Drive, Lindsayfield, East Kilbride, G75 — £270,000 • 4 bed • 3 bath • 518 ft²
4 bedroom detached house for sale in Polden Avenue, Lindsayfield, EAST KILBRIDE, G75 — £270,000 • 4 bed • 3 bath • 929 ft²
4 bedroom detached house for sale in Campsie Road, Lindsayfield, EAST KILBRIDE, G75 — £285,000 • 4 bed • 3 bath • 1139 ft²
4 bedroom detached villa for sale in Ermelo Gardens, Lindsayfield, East Kilbride, G75 , G75 — £270,000 • 4 bed • 3 bath • 1044 ft²
4 bedroom detached villa for sale in Burnside View, Lindsayfield, East Kilbride, G75 , G75 — £295,000 • 4 bed • 3 bath • 1195 ft²
5 bedroom detached house for sale in Mendip Lane, Lindsayfield, EAST KILBRIDE, G75 — £375,000 • 5 bed • 4 bath • 1839 ft²






















































































