**Standout Features:**
- Four-storey end-terrace house
- Ideal for family living or investment (Airbnb potential)
- Two double bedrooms and versatile attic room
- Ground floor bathroom and two reception rooms
- Off-street parking and a good-sized rear garden
- Prime location near Merthyr Town Centre with fabulous views
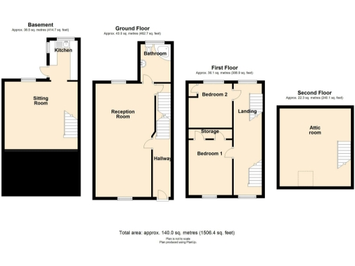
Discover this generously sized four-storey end-terrace home perfect for growing families or savvy investors. Boasting two sizable double bedrooms and an additional attic room, this unique property presents an excellent canvas for personalization while offering a comfortable living space. Enjoy the benefit of a ground floor bathroom and two spacious reception rooms, ideal for everyday family life or hosting guests.
Step outside to a good-sized rear garden, ideal for outdoor activities and relaxation, complemented by off-street parking for added convenience. Nestled at the edge of Merthyr Town Centre, you'll find a plethora of local amenities just a stone's throw away, enhancing both lifestyle and rental appeal.
While the property presents fantastic potential, please note it requires some attention regarding insulation and maintenance, as it was constructed in the 1900s. With a freehold tenure and no immediate structural issues reported, this spacious home is ready for you to put your own stamp on it. Don’t miss your chance to acquire this exceptional property—schedule your viewing today and envision your future here!
3 bedroom terraced house for sale in Somerset Place, Merthyr Tydfil, Cf47 0DU, CF47 — £140,000 • 3 bed • 1 bath • 1906 ft²
2 bedroom terraced house for sale in Union Street, Merthyr Tydfil, South Glamorgan, CF47 — £119,950 • 2 bed • 2 bath • 980 ft²
3 bedroom terraced house for sale in Lower Thomas Street, Merthyr Tydfil, CF47 — £150,000 • 3 bed • 1 bath • 1615 ft²
5 bedroom terraced house for sale in Courtland Terrace, Merthyr Tydfil, CF47 — £400,000 • 5 bed • 1 bath • 2509 ft²
4 bedroom end of terrace house for sale in Lower Thomas Street, Merthyr Tydfil, CF47 — £250,000 • 4 bed • 1 bath • 1744 ft²
3 bedroom terraced house for sale in Quarry Row, Merthyr Tydfil, CF47 — £120,000 • 3 bed • 1 bath • 1228 ft²






























































