Period character meets modern extension on a large private plot ideal for families.
- Four bedrooms with principal en-suite and generous reception rooms
- Large modern extension with vaulted kitchen/diner and top fixtures
- Mature, substantial plot with natural pond and garden privacy
- Off-street parking for two and useful outbuildings
- Oil-fired boiler and radiators — fuel costs and servicing required
- Timber-frame walls; insulation assumed absent — retrofit likely needed
- Built before 1900; confirm planning/building-regulation consents
- Local area: higher-than-average crime and very deprived statistics
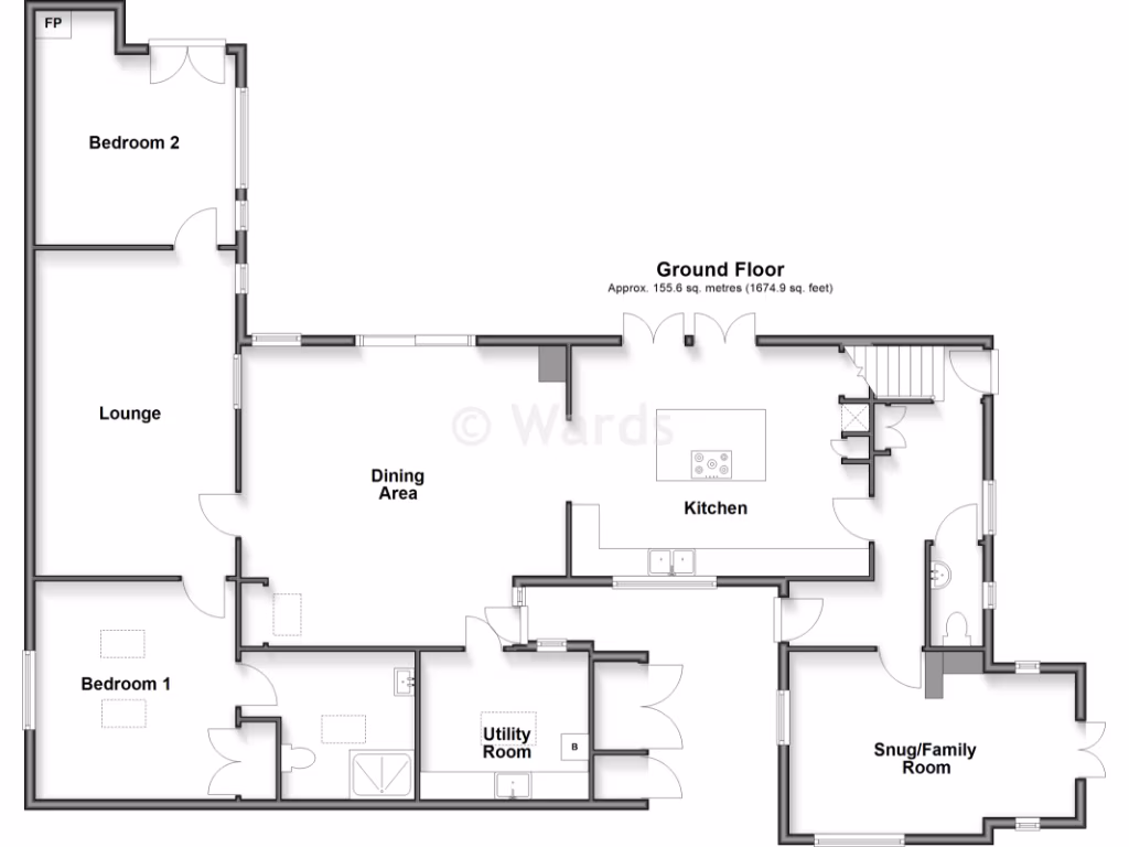
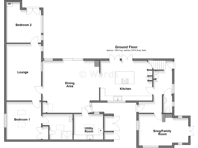
Set in a desirable village setting close to Rye, Mi Cottage combines period character with a sizable modern extension to create a flexible family home. The extension delivers a vaulted, state-of-the-art kitchen/diner and a large dining room that make the ground floor excellent for day-to-day family life and entertaining. Bedrooms include a principal suite with en-suite plus three further bedrooms and two bathrooms.
The plot is notably large and established, with mature planting and a natural pond that enhances privacy and rural charm; there is off-street parking for two cars and outbuildings. Practical details to note: the house uses oil-fired central heating, the structural walls are timber framed (insulation assumed absent), and while glazing is double, installation dates are unknown. Buyers should confirm planning/building-regulation history for the extension.
This home suits buyers seeking countryside living with modern internal space—families wanting good local schools and space to spread out will appreciate the layout. Broadband is reported fast for remote working, though mobile signal is average. The property is freehold and outside flood risk, but the local area records higher-than-average crime and higher deprivation statistics; purchasers should consider local services and security accordingly.
4 bedroom cottage for sale in Wittersham Road, Iden, TN31 — £925,000 • 4 bed • 2 bath • 2153 ft²
3 bedroom cottage for sale in Hog Hill, Winchelsea, East Sussex TN36 4AH, TN36 — £725,000 • 3 bed • 2 bath • 1866 ft²
4 bedroom cottage for sale in Lenham Road, Headcorn, Maidstone, Kent, TN27 — £650,000 • 4 bed • 2 bath • 1454 ft²
3 bedroom semi-detached house for sale in Wittersham Road, Iden, Rye, East Sussex, TN31 — £535,000 • 3 bed • 2 bath • 1076 ft²
4 bedroom detached house for sale in Harbourne Lane, High Halden, Ashford, Kent, TN26 — £800,000 • 4 bed • 2 bath • 1809 ft²
3 bedroom cottage for sale in Wheeler Street, Headcorn, Ashford, Kent, TN27 — £350,000 • 3 bed • 1 bath • 578 ft²


















































































