Dramatic vaulted living with 3/4 acre meadow garden and cart lodge parking.
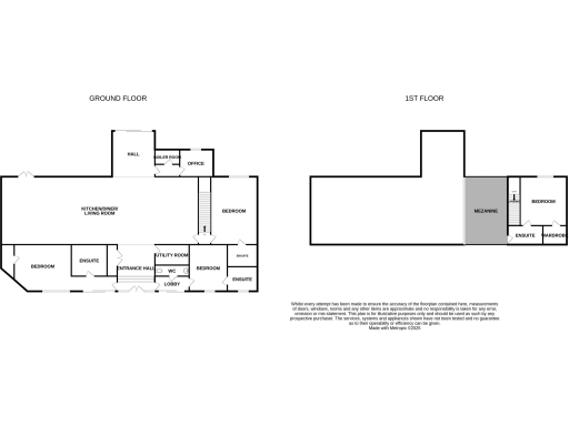
Approx. 3,791 sq ft of living space
Set in a quiet hamlet, this striking four-bedroom barn conversion combines dramatic vaulted volumes and exposed brick with modern fixtures across nearly 3,800 sq ft. The vast kitchen–dining–living hall with 30ft vaulted ceiling and high windows is the home’s focal point, while mezzanine lofts and four en-suite double bedrooms offer flexible family living and guest accommodation.
Outside, the property sits within about three-quarters of an acre of meadow-style garden with a flagstone terrace, mature trees and a timber garden store. Parking is generous: a characterful cart lodge plus three courtyard spaces and a rear driveway provide covered and off-street parking for multiple vehicles.
Important practical notes: the building is Grade II listed and that status will restrict alterations and may complicate maintenance and refurbishment; listed-consent processes and specialist repairs are likely. The setting is rural and relatively isolated, so day-to-day amenities are limited locally — larger villages and rail links are a short drive away.
This is a strong proposition for buyers seeking character, space and countryside privacy: expect the rewards of a unique period conversion alongside the responsibilities of listed-building ownership and countryside living.
3 bedroom barn conversion for sale in Church Lane, Beaumont, CO16 — £595,000 • 3 bed • 2 bath • 2147 ft²
2 bedroom barn conversion for sale in Church Lane, Beaumont, CO16 — £495,000 • 2 bed • 1 bath • 1688 ft²
2 bedroom barn conversion for sale in Church Lane, Beaumont, CO16 — £395,000 • 2 bed • 1 bath • 1482 ft²
4 bedroom barn conversion for sale in Whitehall Lane, Thorpe-Le-Soken, CO16 — £900,000 • 4 bed • 4 bath • 2920 ft²
6 bedroom detached house for sale in Badliss Hall Lane, Ardleigh, Colchester, Essex, CO7 — £1,795,000 • 6 bed • 6 bath • 6318 ft²
3 bedroom barn conversion for sale in Whitehall Lane, Thorpe-Le-Soken, CO16 — £650,000 • 3 bed • 2 bath • 2920 ft²






















































































































































































