**Property Highlights:**
- Historic detached cottage built in 1792
- Stunning views of the Firth of Forth and St Monans Auld Kirk
- Expansive mature gardens with a summer house
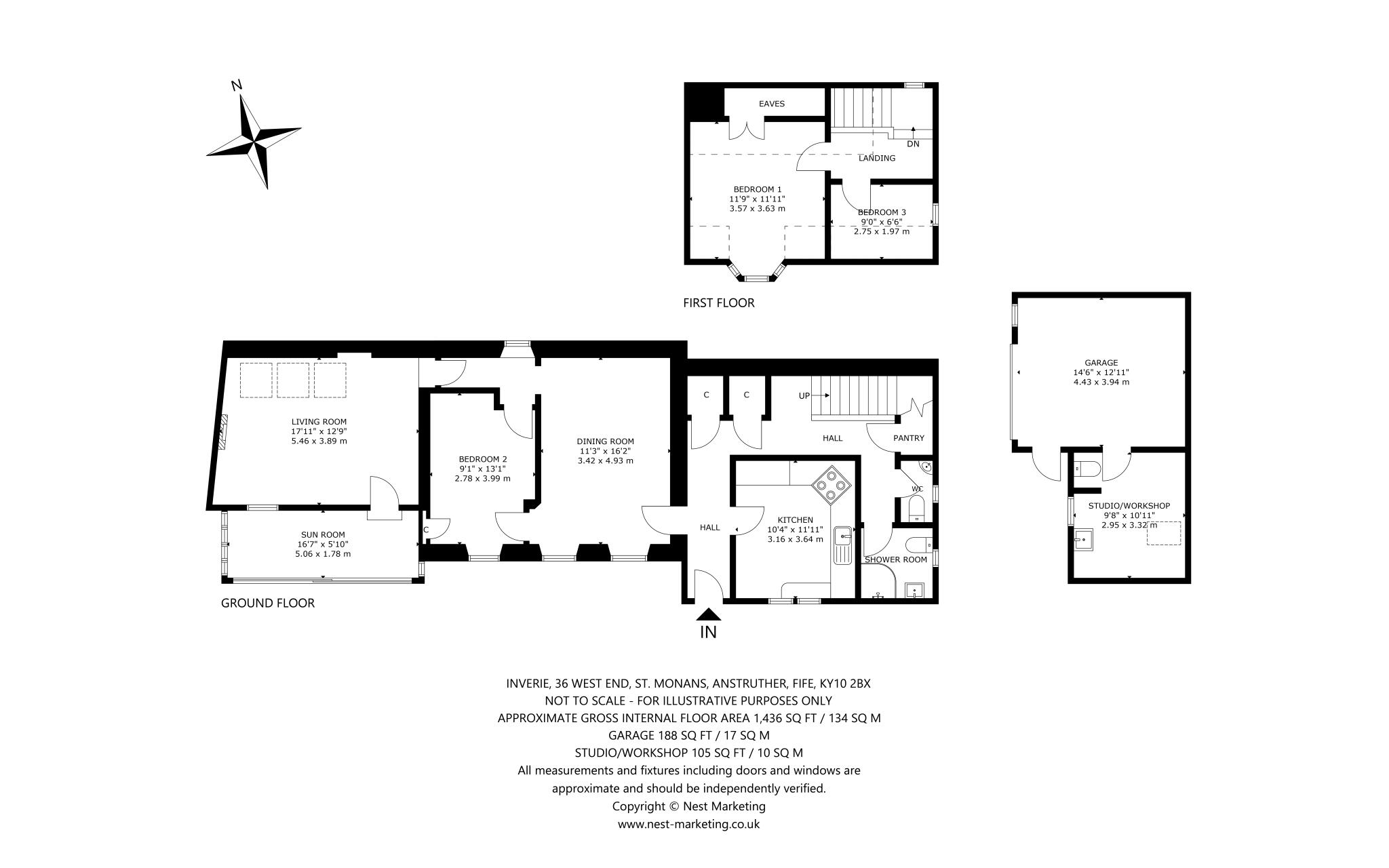
- Three bedrooms and multiple living spaces
- Includes a garage and studio/workshop
- Positioned along the scenic Fife Coastal Trail
- Local amenities within easy reach, including cafes and shops
- Potential for renovations or personal touches
Nestled in the charming coastal village of St Monans, this unique three-bedroom detached cottage offers a rare blend of historic character and modern living, once serving as the home and studio to renowned artist Eugen Dekkert. The property boasts expansive views of the Firth of Forth and the iconic Auld Kirk, providing a picturesque backdrop from its beautifully landscaped garden. Featuring multiple reception areas including a skylit living room and an inviting sunroom, the interior is both spacious and filled with natural light.
Outdoor enthusiasts will find paradise here, with direct access to the Fife Coastal Trail and nearby beaches, not to mention charming local cafes and shops just a stroll away. While the property does require some ongoing maintenance, and the council tax falls within the above-average range, the enchanting surroundings and potential for personalization make this cottage a worthy investment for families, first-time buyers, or those seeking a tranquil retreat. This is a rare opportunity in a coveted location—don’t miss your chance to make it your own!
3 bedroom terraced house for sale in East Street, St. Monans, Anstruther, Fife, KY10 — £329,000 • 3 bed • 2 bath • 1119 ft²
3 bedroom terraced house for sale in West Street, St. Monans, Anstruther, Fife, KY10 — £279,000 • 3 bed • 1 bath • 1248 ft²
2 bedroom semi-detached house for sale in King David Street, St. Monans, Anstruther, Fife, KY10 — £225,000 • 2 bed • 1 bath • 688 ft²
2 bedroom apartment for sale in George Terrace, St. Monans, Anstruther, Fife, KY10 — £275,000 • 2 bed • 1 bath • 871 ft²
5 bedroom terraced house for sale in Chapel Green, Earlsferry, By Leven, KY9 — £1,295,000 • 5 bed • 3 bath • 2206 ft²
5 bedroom detached house for sale in Toll Road, Cellardyke, Anstruther, KY10 — £595,000 • 5 bed • 2 bath • 2637 ft²






















































































































































