**Standout Features:**
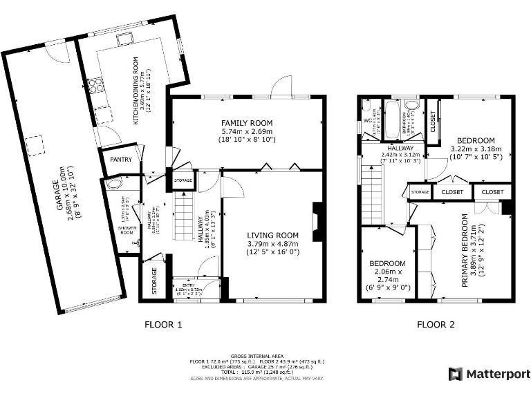
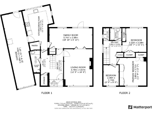
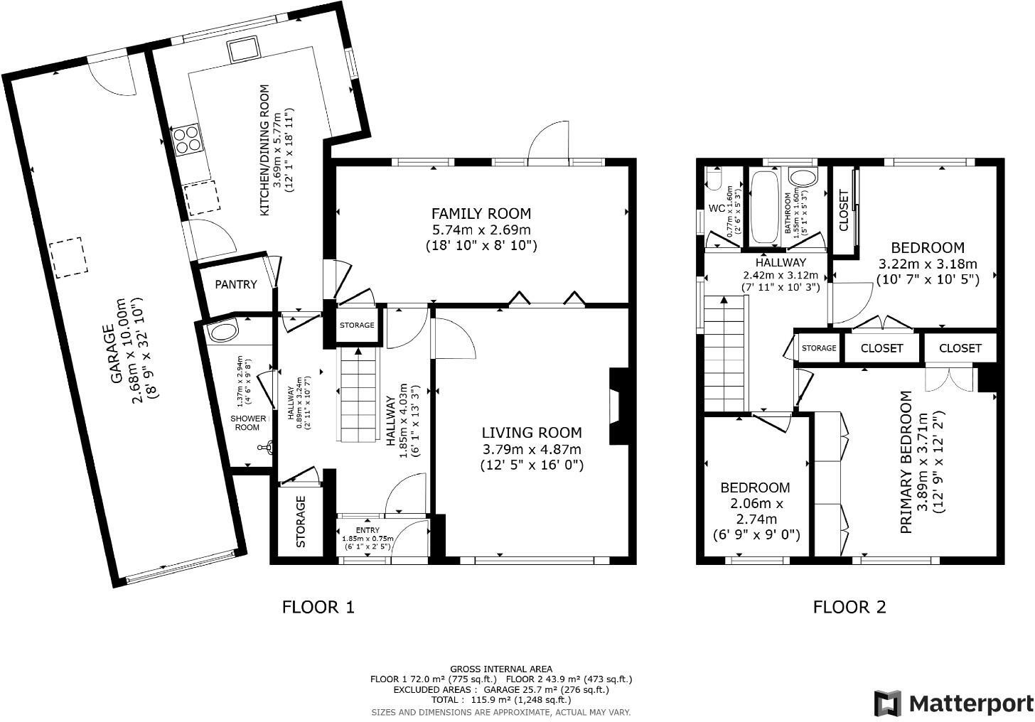
- Extended three-bedroom semi-detached family home
- Two bathrooms: family bathroom and downstairs shower room with WC
- Integral double tandem garage and driveway with parking for several vehicles
- Sunny rear garden with established borders and spacious flagged seating area
- Located near Menston train station and reputable schools
- EPC Rating: C
- Development potential (subject to planning approval)
This charming three-bedroom semi-detached family home in the sought-after village of Menston is perfect for families looking for comfort and space. The property features a well-designed layout with a welcoming entrance porch leading to a spacious living room, a second reception room, and a generous kitchen/dining area. The convenience of a downstairs shower room with WC and an integral double tandem garage makes daily life effortless. The upper floor provides two sizable double bedrooms, a single bedroom—ideal for children or a home office—and a family bathroom, ensuring ample accommodation for all.
The exterior showcases a sunny private garden, perfect for outdoor entertaining or a peaceful retreat, alongside a large driveway that comfortably accommodates multiple vehicles. Positioned close to local amenities and excellent transport links, this home not only offers comfort but also the potential for further development, making it a fantastic investment opportunity. Don’t miss your chance to secure this versatile property in a prime location; it won't be available for long!
3 bedroom semi-detached house for sale in Leathley Crescent, Menston, LS29 — £330,000 • 3 bed • 1 bath • 952 ft²
3 bedroom semi-detached house for sale in Low Hall Road, Menston, LS29 — £450,000 • 3 bed • 1 bath • 1302 ft²
4 bedroom detached house for sale in Ellar Gardens, Menston, LS29 — £570,000 • 4 bed • 3 bath • 1746 ft²
4 bedroom detached house for sale in Newfield Drive, Menston, LS29 — £565,000 • 4 bed • 2 bath • 1406 ft²
4 bedroom house for sale in Croft Park, Menston, Ilkley, LS29 — £465,000 • 4 bed • 1 bath • 1182 ft²
4 bedroom detached house for sale in Main Street, Menston, LS29 — £675,000 • 4 bed • 2 bath • 2050 ft²


























































