**Standout Features:**
- Freehold development site with vacant possession
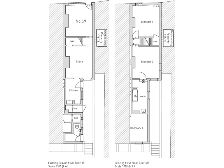
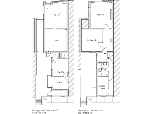
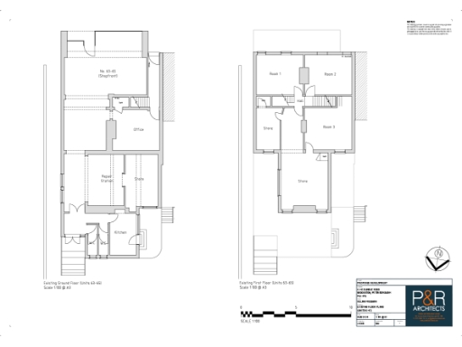
- Existing planning consent for 11 residential units (all 1-bedroom apartments)
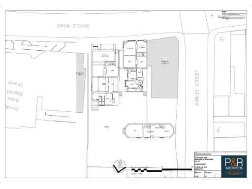
- Large car park accommodating approx. 25 vehicles
- Located on busy Oundle Road, close to major retailers (Tesco, Lidl, Nisa)
- Significant redevelopment potential with proposed nearby residential projects
- Fast broadband and excellent mobile signal
**Potential Concerns:**
- High local crime rate
- Area has noted deprivation attributes
**Summary Description:**
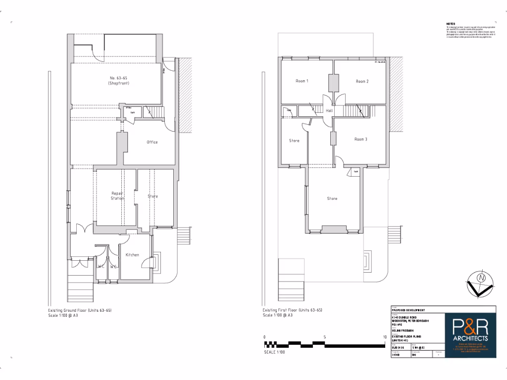
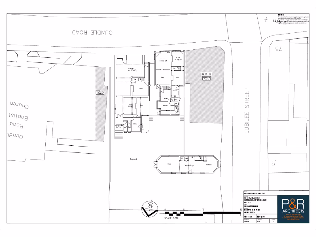
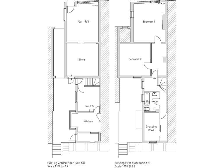
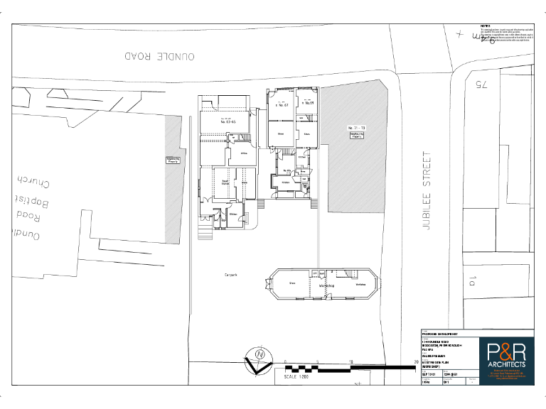
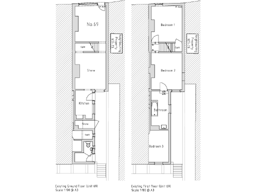
Unlock unparalleled potential with this expansive freehold development site on Oundle Road. Spanning approximately 6,401 sq ft over a large plot, the property comes with existing planning consent for the conversion into 11 one-bedroom apartments, making it an enticing opportunity for investors and developers alike.
With key commercial units visible from a busy thoroughfare and a generous rear car park, this strategically positioned site not only ensures significant foot traffic but also easy access to Peterborough’s city centre and amenities, including the picturesque Nene River. The future redevelopment plans in the vicinity promise added appeal and value, positioning this project as a prime candidate for those looking to capitalize on residential needs in a developing market.
Don't miss out on this unique investment opportunity that balances immediate revenue potential with promising growth—a rarity in today’s marketplace.
2 bedroom mixed use property for sale in Oundle Road, Peterborough, PE2 9QA, PE2 — £750,000 • 2 bed • 4 bath • 3700 ft²
Commercial development for sale in Land at Eye Road, Peterborough, PE1 4SA, PE1 — £1,500,000 • 1 bed • 1 bath
Land for sale in PHASE 3 LAND, Peterborough One Retail Park, Eye Road, Peterborough, PE1 4YZ, PE1 — £2,000,000 • 1 bed • 1 bath
Plot for sale in Scotney Street, Peterborough, PE1 — £450,000 • 1 bed • 1 bath • 2066 ft²
High street retail property for sale in Land Parcel, Maskew Avenue, Peterborough, PE1 2AS, PE1 — £400,000 • 1 bed • 1 bath • 25178 ft²
Industrial development for sale in Oxney Road: Peterborough , PE1 — £7,000,000 • 1 bed • 1 bath






































































