Turnkey downsizing with incentives and flexible move options.
• Secure gated community exclusively for over‑45s
• Up to 800 sq ft; fully furnished, turnkey finish
• £15,000 move‑in incentives; stamp duty exempt
• Pets welcome; landscaped communal grounds
• Monthly site fee £225; annual ground rent £2,700
• Broadband slow locally; check speeds for remote working
• Local crime rate high; consider personal security measures
• Tenure unspecified—confirm legal status before exchange
Discover a newly built, single-storey park home in a secure gated community for over-45s, designed for low‑maintenance coastal living. The homes offer up to 800 sq ft of thoughtfully laid-out space, come fully furnished with upgrade options, and include practical features such as open-plan living, modern kitchens and a raised deck for fresh sea air. Move-in incentives of £15,000 and stamp-duty exemption make this an attractive, cost-saving opportunity for downsizers seeking a turnkey move before Christmas.
The park promotes a close-knit, pet-friendly environment with landscaped grounds and year‑round residency. Flexible purchase options — including part exchange and assisted move services — simplify relocation, and practical benefits include very low flood risk and excellent mobile signal. Onsite charges cover communal services, with a monthly site fee of £225 and an annual ground rent of £2,700, which is higher than typical and reviewed against CPI.
Be aware of several material considerations: broadband speeds in the area are reported as slow, local crime rates are high, and the wider area shows signs of deprivation. Tenure details are not provided and should be confirmed before purchase. These factors may affect daily convenience and long-term resale prospects despite the strong lifestyle appeal and coastal location.
Overall, this development suits buyers prioritising easy, community-focused seaside living with minimal upkeep, immediate occupancy options, and clear cost incentives — provided they accept higher ongoing site charges and investigate tenure and local service limitations beforehand.
2 bedroom park home for sale in Crookes Lane,
Kewstoke,
Weston-Super-Mare,
North Somerset,
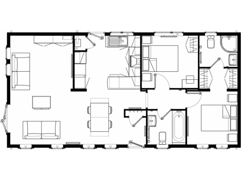
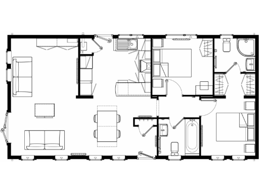
BS229XB, BS22 — £294,995 • 2 bed • 2 bath • 900 ft²
3 bedroom park home for sale in Crookes Lane,
Kewstoke,
Weston-Super-Mare,
North Somerset,
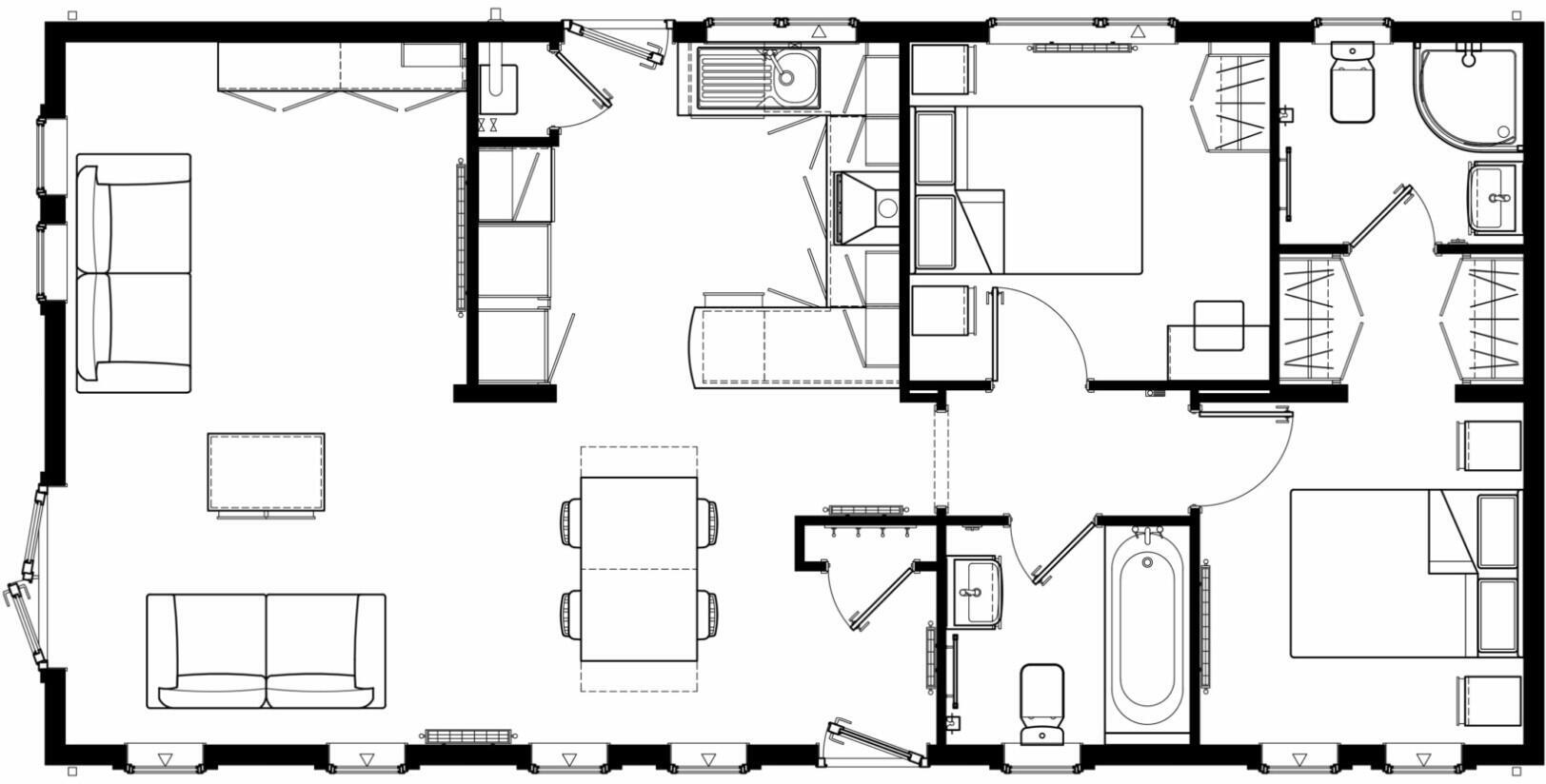
BS229XB, BS22 — £329,995 • 3 bed • 2 bath • 1000 ft²
2 bedroom park home for sale in Crookes Lane,
Kewstoke,
Weston-Super-Mare,
North Somerset,
BS229XB, BS22 — £259,995 • 2 bed • 2 bath • 800 ft²
2 bedroom park home for sale in Weston-super-Mare, Somerset, BS22 — £365,000 • 2 bed • 2 bath • 1000 ft²
2 bedroom park home for sale in Lower Norton Lane, Kewstoke - QUALITY PARK HOME, BS22 — £150,000 • 2 bed • 1 bath • 439 ft²
2 bedroom caravan for sale in Kewstoke, Weston Supermare, BS22 9YR, BS22 — £123,995 • 2 bed • 1 bath






























































