**Standout Features:**
- Newly constructed, double-fronted detached home (built in 2023)
- Four bedrooms with three modern bathrooms
- Open-plan kitchen/dining/living area
- Dedicated study space
- Spacious garden, garage, and additional parking
- 10 Year ICW Build Warranty
- Freehold tenure
- Located in the tranquil Abbeyford Vale development
**Potential Concerns:**
- Smaller overall size (569 sq ft)
- New build may require basic landscaping or finishing touches
- Local amenities classified as average in terms of area deprivation
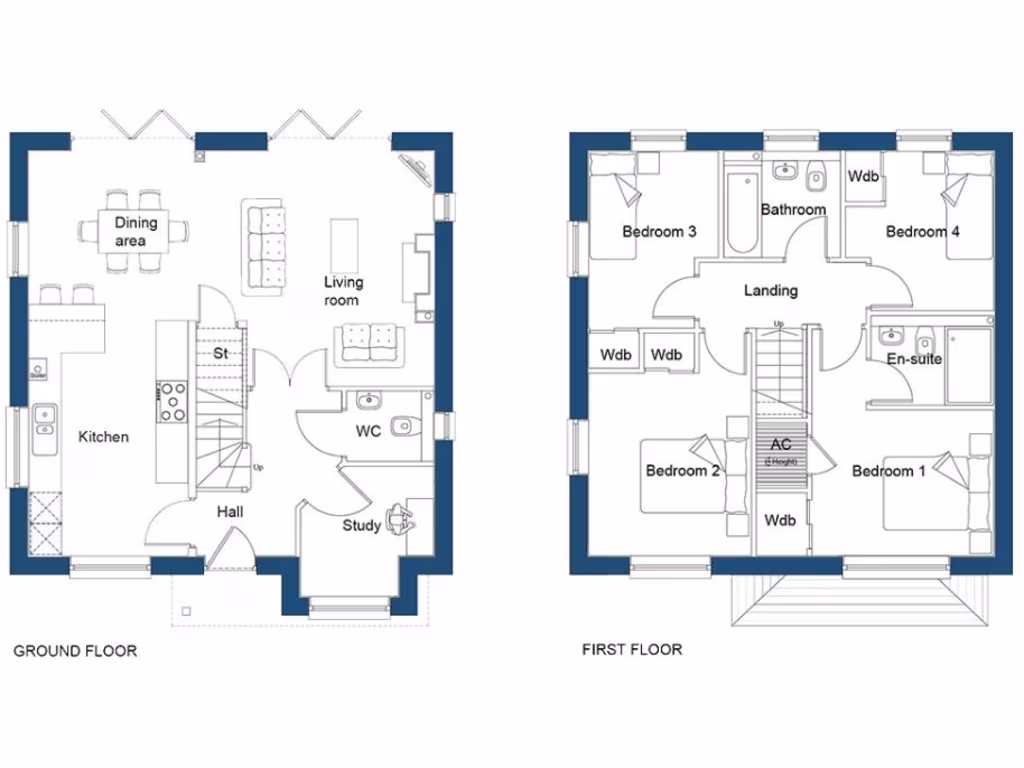
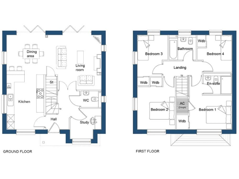
Welcome to this charming, newly built four-bedroom detached family home nestled in the peaceful Abbeyford Vale development of Okehampton. With a modern design and a focus on comfortable living, this property features an open-plan kitchen and living area adorned with contemporary finishes. A dedicated study adds flexibility, perfect for remote working or as a quiet haven. Each of the three bathrooms is thoughtfully designed, enhancing family convenience.
The outside space boasts a generous garden alongside a garage and parking for ease of access. Families will appreciate the proximity to several highly-rated primary schools, while the town offers essential amenities—including shops, cafes, and recreation facilities—all within just a mile. With a low-crime rating and easy access to the A30, this property stands out for both families and first-time buyers. Don’t miss this opportunity to secure a vibrant, modern home in a growing community!
4 bedroom detached house for sale in Okehampton, EX20 — £380,000 • 4 bed • 2 bath • 1211 ft²
4 bedroom detached house for sale in Okehampton, EX20 — £395,000 • 4 bed • 2 bath • 569 ft²
4 bedroom detached house for sale in Abbeyford Vale, Okehampton, Devon, EX20 — £395,000 • 4 bed • 2 bath • 1211 ft²
4 bedroom detached house for sale in Abbeyford Vale, Crediton Road, Okehampton, Devon, EX20 — £365,000 • 4 bed • 2 bath • 1211 ft²
4 bedroom detached house for sale in Okehampton, EX20 — £395,000 • 4 bed • 2 bath • 569 ft²
4 bedroom detached house for sale in Okehampton, EX20 — £365,000 • 4 bed • 2 bath • 569 ft²


























































