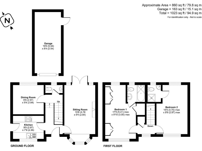
**Key Features:**
- Two double bedrooms, each with en-suite bathrooms
- Dual aspect living room with a gas fireplace and bay window
- Galley-style kitchen with side access
- Separate dining room for family gatherings
- Level rear garden with patio, ideal for outdoor entertaining
- Driveway parking and a single garage with electric door
- Walking distance to Farnham Town Centre
Nestled in a tranquil private road, this charming detached home offers an ideal blend of comfort and convenience just a short stroll from Farnham Town Centre. Boasting two spacious double bedrooms, both complemented by en-suite bathrooms, this property caters well to families or those seeking guest accommodation. The inviting dual aspect living room, with a cozy gas fireplace and elegant bay window, creates a light-filled retreat to relax in. Additional comforts include a separate dining room and a galley-style kitchen featuring practical side access.
The exterior is equally appealing, featuring a manageable level garden perfect for hosting gatherings, plus driveway parking with a garage that includes an electric door for added ease. While the home is generally well-maintained, potential buyers should note the age of the double glazing, which was installed before 2002. This property also stands out for its favorable location, close to esteemed schools with notable Ofsted ratings, making it a particularly attractive option for families. With a reasonable price point for the area and a decent plot size, this property offers excellent long-term potential. Don't miss this opportunity to secure a delightful home in a sought-after neighborhood!
4 bedroom detached house for sale in Greystead Park, Wrecclesham, Farnham, GU10 — £1,100,000 • 4 bed • 2 bath • 1599 ft²
2 bedroom semi-detached house for sale in Old Park Close, Farnham, Surrey, GU9 — £425,000 • 2 bed • 1 bath • 864 ft²
5 bedroom detached house for sale in Wrecclesham Hill, Farnham, GU10 — £950,000 • 5 bed • 3 bath • 2000 ft²
4 bedroom house for sale in Westbury Gardens, Farnham, GU9 — £650,000 • 4 bed • 2 bath • 1073 ft²
4 bedroom detached house for sale in Saxon Croft, Farnham, Surrey, GU9 — £1,150,000 • 4 bed • 3 bath • 1967 ft²
4 bedroom detached house for sale in Stream Farm Close, Lower Bourne, Farnham, Surrey, GU10 — £1,350,000 • 4 bed • 2 bath • 2207 ft²


































