Extended four-bedroom semi with conservatory, garage and large garden in popular Byfleet road.
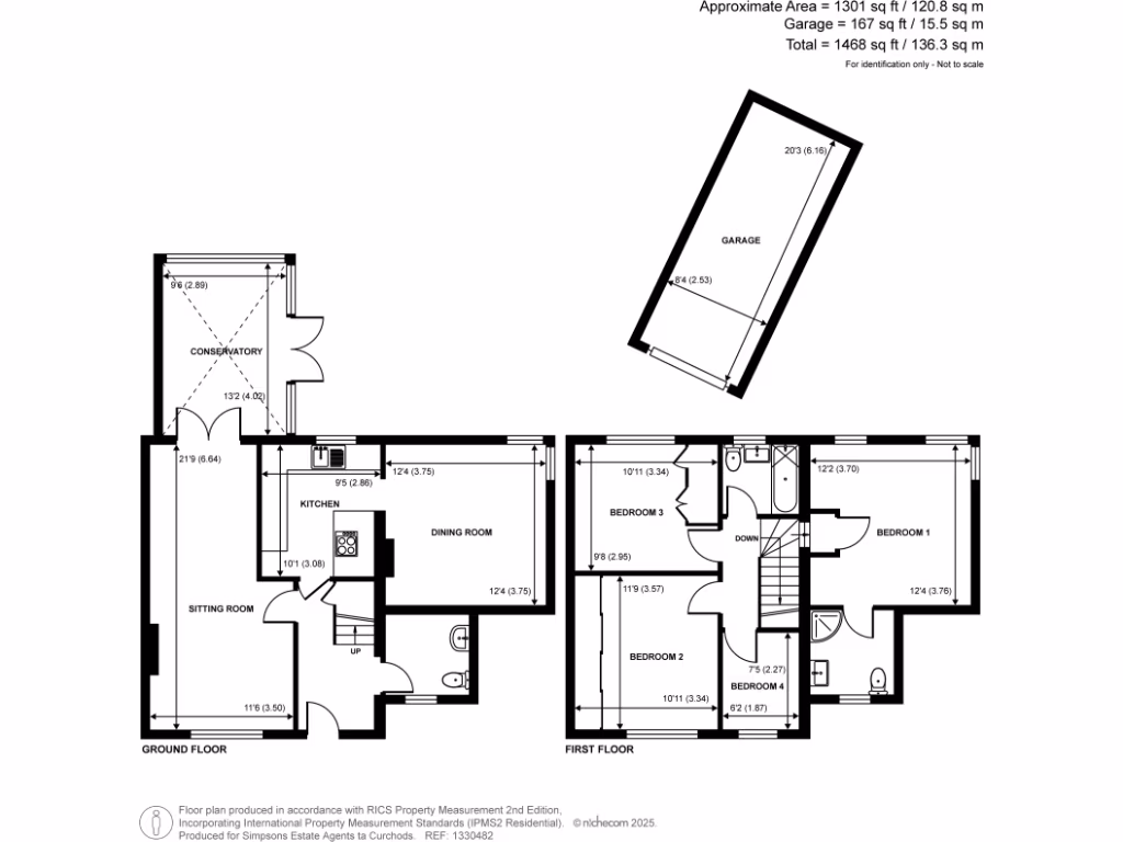
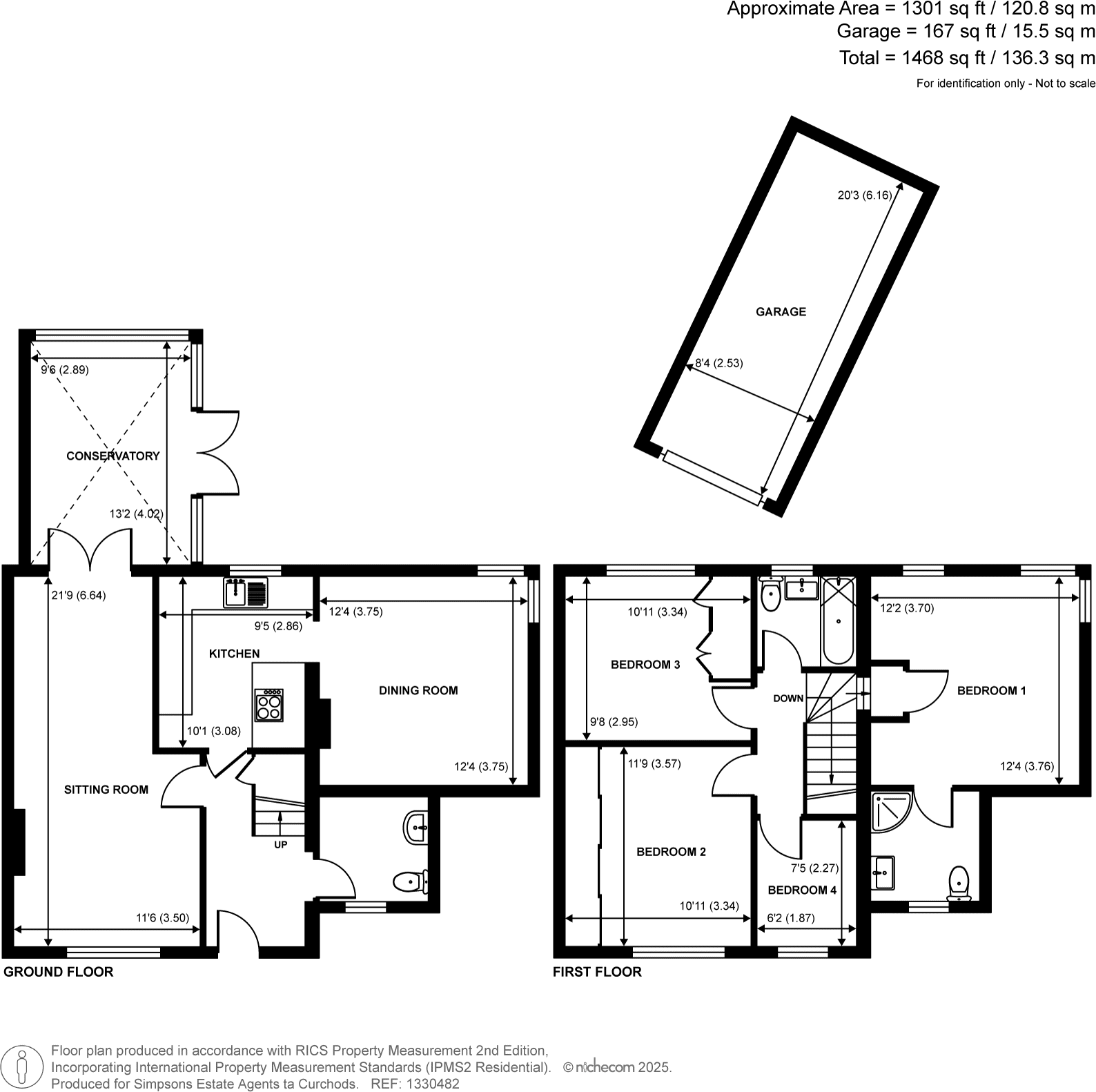
Extended four-bedroom layout with conservatory and large rear garden
Detached garage plus driveway parking for multiple vehicles
Modern kitchen with good storage and wood-effect worktops
Principal bedroom with ensuite; four bedrooms in total
Two bathrooms (family bathroom plus separate shower room)
Medium local flood risk — check insurance and flood maps
Double glazing installed pre-2002; likely need for improved insulation/efficiency
Built 1950–66 — potential to modernise and renovate for energy saving
This extended four-bedroom semi-detached house on Fullerton Drive offers flexible family living across two floors. Ground floor living includes a sitting room, separate dining room, modern kitchen and a large conservatory that opens onto a generous rear garden — a practical layout for everyday family life and entertaining.
Upstairs there are four well-proportioned bedrooms, including a principal with ensuite, plus a separate family bathroom and shower room. Off-street parking and a detached garage add useful storage and parking space. The property is freehold and sits in a popular Byfleet residential road with fast links from West Byfleet station to London and easy access to the A3 and M25.
Practical considerations: the house dates from the 1950–66 period, has double glazing installed before 2002 and cavity walls assumed to lack insulation, so energy-efficiency improvements may be desirable. There is a medium flood risk for the area — buyers should check insurance costs and local flood maps. Overall this is a roomy, well-located family home with scope to update and personalise to modern standards.
3 bedroom semi-detached house for sale in Fullerton Road, Byfleet, Surrey, KT14 — £485,000 • 3 bed • 1 bath • 918 ft²
4 bedroom detached house for sale in Spence Avenue, Byfleet, KT14 — £760,000 • 4 bed • 2 bath • 2294 ft²
4 bedroom semi-detached house for sale in Church Road, Byfleet, KT14 — £630,000 • 4 bed • 2 bath • 1124 ft²
3 bedroom semi-detached house for sale in Church Road, Byfleet, West Byfleet, Surrey, KT14 — £550,000 • 3 bed • 1 bath • 1036 ft²
3 bedroom semi-detached house for sale in Fullerton Road, Byfleet, KT14 — £485,000 • 3 bed • 2 bath • 905 ft²
4 bedroom detached house for sale in Winern Glebe, Byfleet, West Byfleet, Surrey, KT14 — £700,000 • 4 bed • 3 bath • 1593 ft²






















































































