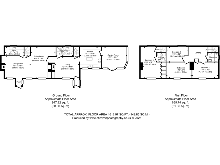
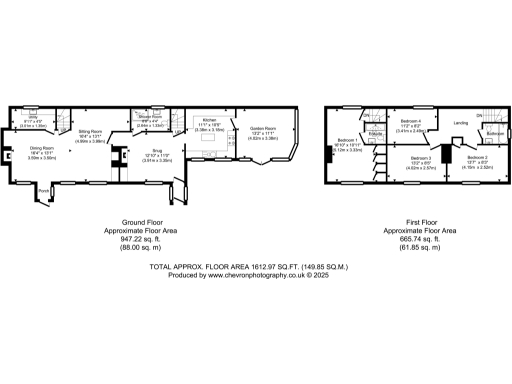
**Standout Features:**
- Grade II listed semi-detached cottage with period charm
- Four bedrooms, including one en-suite
- Three reception rooms plus a utility room
- Three well-appointed bathrooms
- Scenic cottage-style gardens adjacent to Newton Green Golf Course
- Off-street parking and a large plot
**Summary:**
Discover the enchanting Poppy Cottage, a Grade II listed semi-detached home located in the tranquil village of Newton, Suffolk. This beautifully preserved property boasts four spacious bedrooms—including a private en-suite—and a wealth of traditional features, presenting a perfect blend of character and comfort. The heart of the home includes three inviting reception rooms, ideal for family gatherings or cozy evenings, along with a stylish kitchen fitted with modern amenities.
Step outside to enjoy the delightful cottage-style gardens that offer a serene retreat, complete with mature trees and well-established planting—the perfect setting for outdoor entertaining or peaceful relaxation. With three bathrooms catering to family needs and the convenience of off-street parking, this property is as practical as it is charming.
Though as a Grade II listed property, renovations may come with certain restrictions, the charm and essence of traditional architecture offer an opportunity to create your dream family home. Positioned across from the scenic Newton Green Golf Course, this property is a rare find in today’s market. Don't miss your chance to own a piece of countryside history—schedule your viewing today!
3 bedroom detached house for sale in Newton, Sudbury, Suffolk, CO10 — £525,000 • 3 bed • 3 bath • 1711 ft²
2 bedroom terraced house for sale in Newton, Sudbury, Suffolk, CO10 — £375,000 • 2 bed • 1 bath • 1145 ft²
3 bedroom detached house for sale in Newton, Sudbury, Suffolk, CO10 — £525,000 • 3 bed • 3 bath • 1711 ft²
3 bedroom detached house for sale in Newton, Sudbury, Suffolk, CO10 — £700,000 • 3 bed • 1 bath • 1558 ft²
3 bedroom detached house for sale in Rectory Road, Newton, Sudbury, Suffolk, CO10 — £700,000 • 3 bed • 1 bath • 1602 ft²
4 bedroom detached house for sale in Red House Close, Newton, Sudbury, CO10 — £500,000 • 4 bed • 2 bath • 1497 ft²














































































































































































