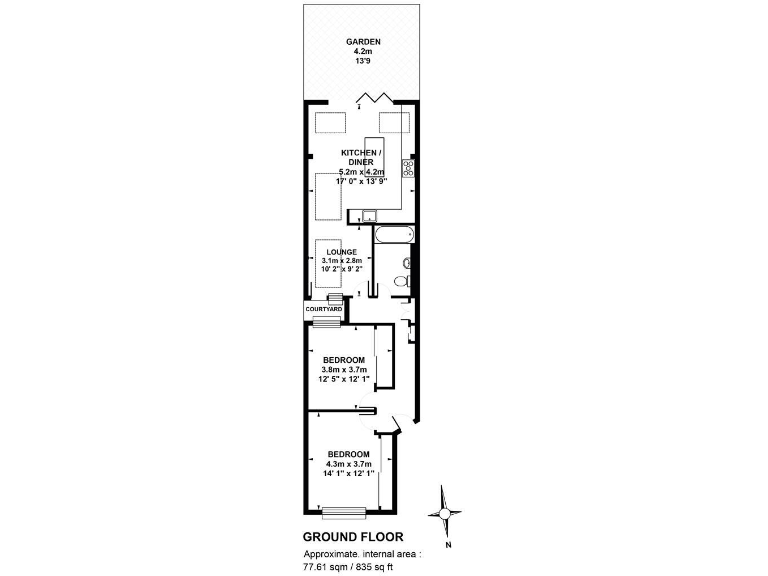
Bright modern living with garden, close to Nunhead and Peckham transport.
Private paved garden with patio and raised planting beds
Large open-plan kitchen/diner with skylight and island
Two double bedrooms with fitted storage
Share of freehold; 999 years remaining on lease
EPC C (current 76) with potential marginal improvement
Solid brick Victorian walls; assumed no cavity insulation
Single bathroom only — may limit larger family use
Area shows higher deprivation and average local crime levels
This extended two-bedroom ground-floor period conversion blends a bright contemporary interior with classic Victorian character. The open-plan kitchen/diner with skylight, central island and tri-fold doors creates a social heart opening onto a low-maintenance private garden — ideal for family dining and relaxed entertaining.
Practical details add value: a long 999-year lease on a share of freehold, double glazing, mains gas boiler with radiators, and a current EPC rating of C (76). Two double bedrooms and a well-presented bathroom suit a small family or professionals seeking roomy, modernised living close to transport links.
Buyers should note a few material points: the building retains solid brick walls with assumed no insulation in the original fabric, and there is a single bathroom. The area registers higher relative deprivation and average crime levels, so buyers prioritising quiet, low-deprivation neighbourhoods should view with that context in mind.
Overall this is a comfortable, characterful home for families or first-time buyers who want contemporary living and outdoor space, good rail connections to central London, and the long lease security that comes with shared freehold ownership.
2 bedroom flat for sale in Kirkwood Road, Nunhead, SE15 — £495,000 • 2 bed • 1 bath • 657 ft²
2 bedroom flat for sale in Lanvanor Road, Peckham, SE15 — £675,000 • 2 bed • 1 bath • 762 ft²
3 bedroom terraced house for sale in Kirkwood Road, Peckham, SE15 — £775,000 • 3 bed • 1 bath • 766 ft²
3 bedroom terraced house for sale in Kirkwood Road, Nunhead, London, SE15 — £900,000 • 3 bed • 1 bath • 999 ft²
2 bedroom flat for sale in York Grove, Peckham, SE15 — £700,000 • 2 bed • 1 bath • 883 ft²
2 bedroom flat for sale in York Grove, London, SE15 — £485,000 • 2 bed • 1 bath • 573 ft²






















































