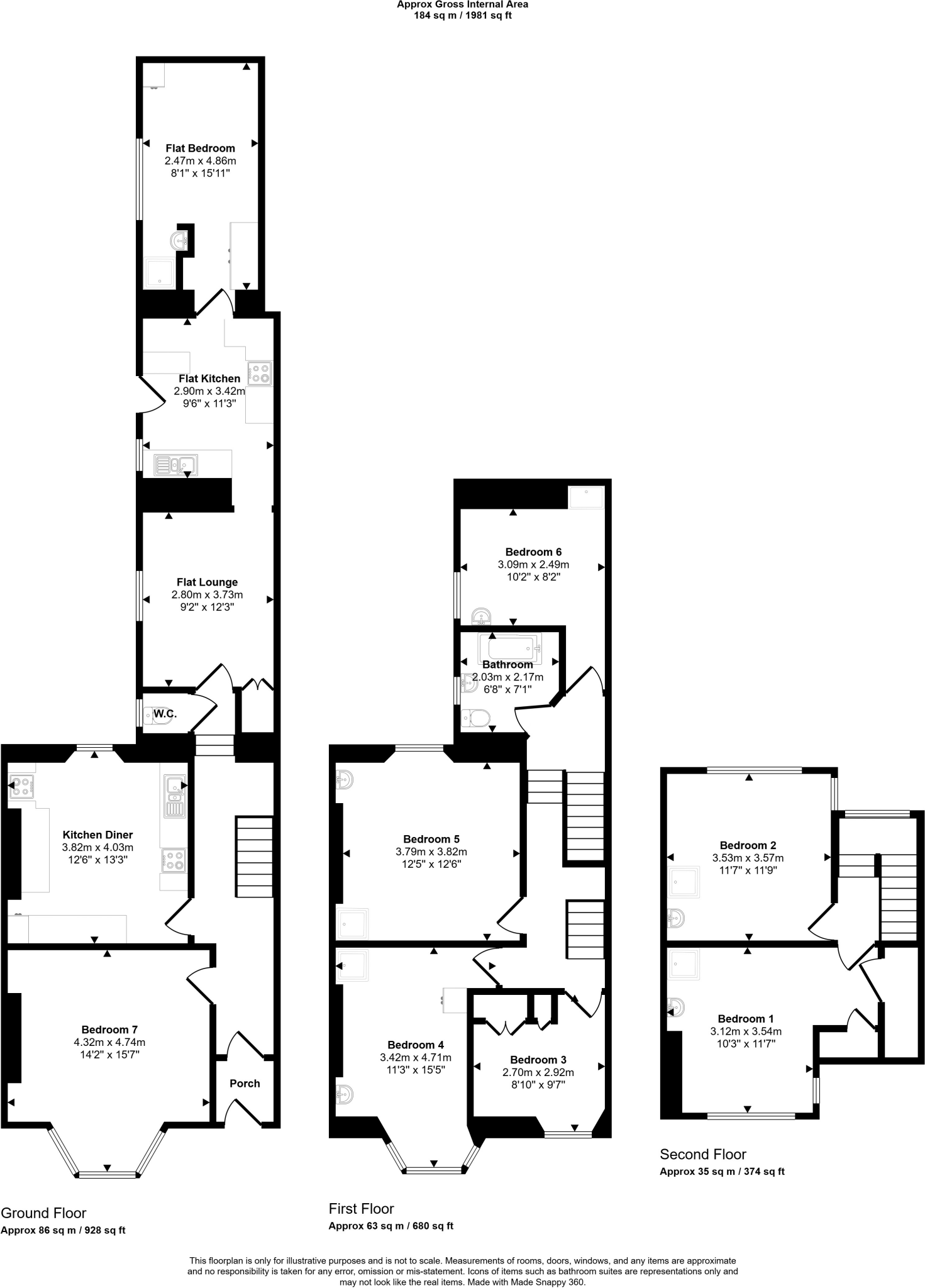
**Standout Features:**
- 8-bedroom licensed HMO in the heart of Falmouth
- Fully tenanted with long-term, non-student residents
- Potential for profitable investment with a gross yield of 9.8%
- Low annual expenses (~£7,000) against substantial rental income (£42,400, increasing to £45,120 in 2025)
- Ocean proximity and rich local amenities
- Well-maintained communal spaces including a large kitchen and courtyard garden
**Concise Summary:**
This spacious and fully licensed 8-bedroom HMO on Marlborough Road presents an excellent opportunity for savvy investors seeking a reliable income stream in picturesque Falmouth. Currently generating a substantial rental income, this property is fully tenanted with long-standing residents (non-students), offering an attractive yield of 9.8%. With minimal running costs and the potential for rental increases, this property can be a lucrative addition to your investment portfolio.
Nestled in the vibrant center of Falmouth, you'll be just a short walk from shops, local amenities, and transport links, ensuring high tenant demand. The airy, three-storey layout includes a large communal kitchen, well-furnished bedrooms, and a charming courtyard garden for relaxation. While currently thriving as an HMO, there’s added flexibility for future owners considering potential renovations or adaptations to suit evolving needs. Embrace the bustling coastal lifestyle—properties like this don't stay on the market for long!
5 bedroom terraced house for sale in Falmouth, TR11 — £475,000 • 5 bed • 2 bath • 1494 ft²
5 bedroom house for sale in Trelawney Road, Falmouth, TR11 — £410,000 • 5 bed • 2 bath • 1552 ft²
4 bedroom terraced house for sale in Marine Crescent, TR11 — £395,000 • 4 bed • 1 bath • 1068 ft²
5 bedroom terraced house for sale in Albany Road, Falmouth, TR11 — £400,000 • 5 bed • 2 bath • 1349 ft²
4 bedroom terraced house for sale in Falmouth, TR11 — £350,000 • 4 bed • 2 bath • 1077 ft²
5 bedroom terraced house for sale in Railway Cottages, TR11 — £320,000 • 5 bed • 1 bath • 1224 ft²






















































































