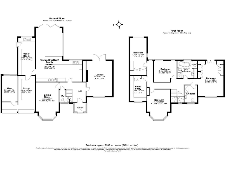
**Standout Features:**
- Newly renovated 1930s detached family home
- Five spacious bedrooms, including an en-suite to the principal room
- Elegant Siematic kitchen with Miele appliances
- Vaulted family room with bi-fold doors opening onto a landscaped garden
- Private landscaped garden with patio and summer house
- Garage with home gym and EV charging point
- Chain-free and easily accessible location near Solihull Town Centre
This stunning five-bedroom detached home seamlessly combines modern luxury with classic charm. Its newly renovated interiors feature a state-of-the-art Siematic kitchen equipped with premium Miele appliances, ideal for culinary enthusiasts. The impressive vaulted family room, enhanced by bi-fold doors, invites natural light and creates a perfect indoor-outdoor living space that is perfect for entertaining. The principal bedroom is a private retreat, complete with a Juliet balcony, fitted dressing area, and luxurious en-suite.
Outside, enjoy a beautifully landscaped garden offering expansive outdoor entertaining options alongside a patio and a charming summer house. The property includes a double garage, with one section converted into a home gym, and an EV charging point—a nod to modern sustainability.
Located in a prestigious area close to Solihull Town Centre, this home emphasizes convenience with excellent local amenities and highly rated schools. However, potential buyers should note the high council tax rates and a well-maintained garden that may still require some ongoing care. This property offers a rare opportunity for families seeking space, comfort, and the potential for future expansion, making it a desirable choice in today's market. Don’t miss out on this exceptional family haven!
5 bedroom semi-detached house for sale in Streetsbrook Road, Solihull, B91 — £700,000 • 5 bed • 3 bath • 2407 ft²
5 bedroom detached house for sale in Woodside Way, Solihull, West Midlands, B91 — £1,395,000 • 5 bed • 4 bath • 2900 ft²
5 bedroom detached house for sale in Prospect Lane, Solihull, B91 — £700,000 • 5 bed • 3 bath • 1686 ft²
5 bedroom semi-detached house for sale in Ashleigh Road, Solihull, B91 — £949,500 • 5 bed • 4 bath • 2617 ft²
5 bedroom detached house for sale in Silhill Hall Road, Solihull, B91 — £900,000 • 5 bed • 2 bath • 2303 ft²
5 bedroom detached house for sale in Oakley Wood Drive, Solihull, B91 — £1,250,000 • 5 bed • 3 bath • 2239 ft²














































































































































