Immaculate five-bed chalet with large garden, solar panels and ample parking — ideal for growing families..
- Five bedrooms including ground-floor options for flexible living
- Large landscaped rear garden with sandstone patio and pergola
- Owned solar panels reduce electricity costs
- Detached garage partly divided; potential gym or hobby room
- Large block-paved driveway for multiple vehicles
- Oil-fired boiler heating; not connected to gas network
- EPC C; double glazing present but install dates unknown
- Council tax band above average; built 1950s–1960s (older construction)
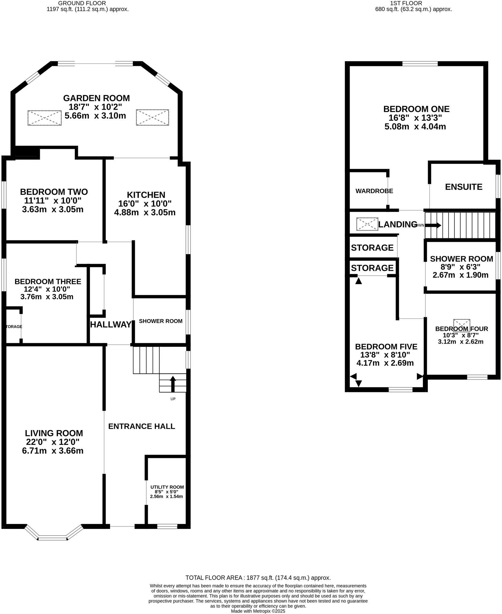
This well-presented five-bedroom chalet bungalow combines generous family space with a large sunny rear garden and substantial off-street parking. The ground floor offers two reception rooms, an open-plan kitchen with utility, and two bedrooms — convenient for multigenerational living or home working. Upstairs provides three further bedrooms, a family bathroom and an en-suite, giving flexibility for families or guests.
Practical running costs are helped by owned solar panels, though the property is heated by an oil-fired boiler and has an EPC rating of C. The detached garage has been partly divided (currently offering storage and a potential gym/hobby space) and the driveway is block-paved for multiple vehicles. Recent landscaping has created a Sandstone patio, pergola seating area and well-tended lawn with mature planting.
Located in a comfortable, very affluent suburb with low crime, fast broadband and excellent mobile signal, the home sits close to several well-regarded primary schools and convenient local amenities (bus stops and a post box). Council tax is above average and the house dates from the 1950s–1960s, so buyers should expect period maintenance and consider double-glazing age unknown.
Overall this detached chalet bungalow will suit families seeking space, outdoor living and practical outbuildings — buyers wanting fully modern systems should budget for potential heating upgrades or window replacement in future.
5 bedroom detached house for sale in Main Road, Dibden, Southampton, Hampshire, SO45 — £650,000 • 5 bed • 2 bath • 2228 ft²
3 bedroom detached bungalow for sale in Southbourne Avenue, Holbury, SO45 — £359,950 • 3 bed • 1 bath • 786 ft²
3 bedroom semi-detached bungalow for sale in Gorran Avenue, Gosport, PO13 — £349,000 • 3 bed • 2 bath • 1141 ft²
5 bedroom bungalow for sale in Highwood Lane, Romsey, Hampshire, SO51 — £750,000 • 5 bed • 3 bath • 2320 ft²
4 bedroom detached house for sale in Copse Lane, Hayling Island, Hampshire, PO11 — £549,995 • 4 bed • 3 bath • 1292 ft²
3 bedroom chalet for sale in Dibden Lodge Close, Hythe, SO45 — £659,950 • 3 bed • 3 bath • 1023 ft²














































































































