Freehold Oast investment with immediate income and 19 car spaces.
Freehold office investment producing £77,235 pa
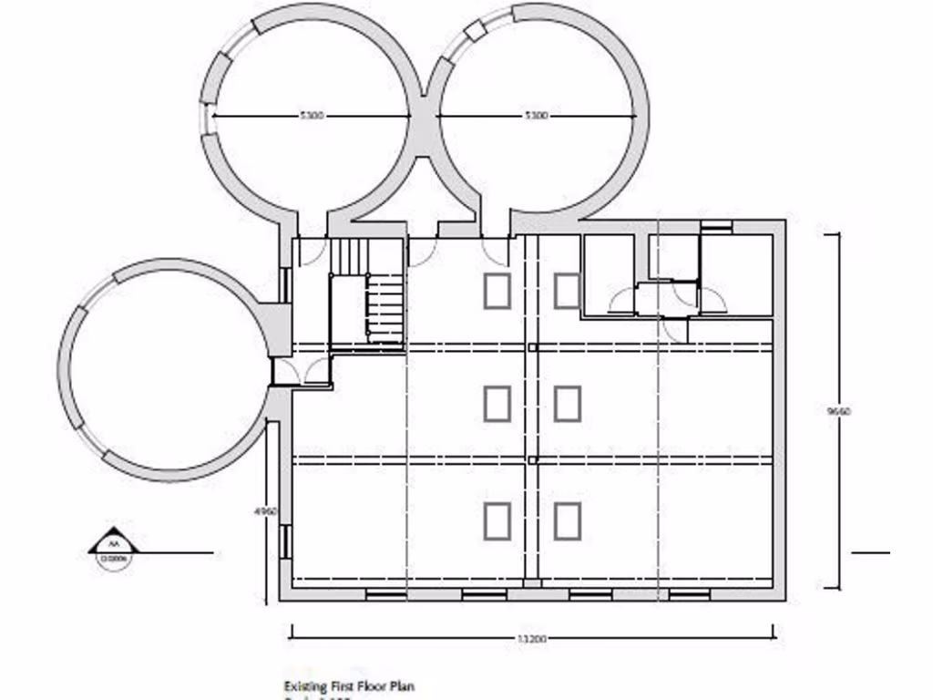
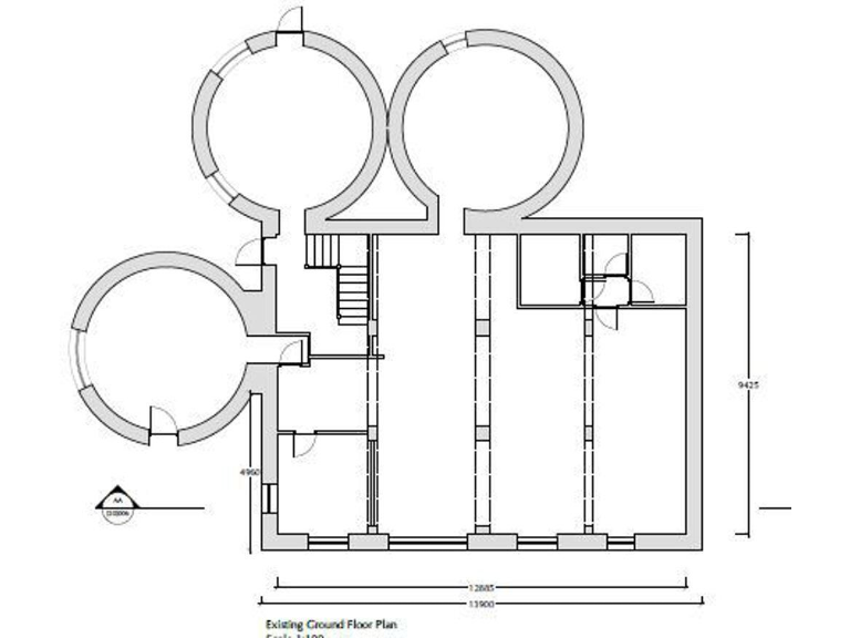
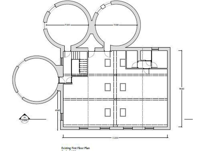
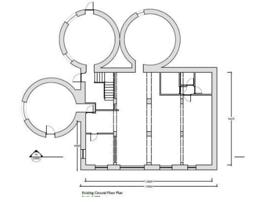
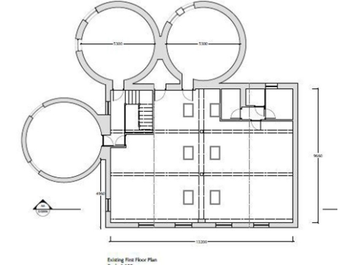
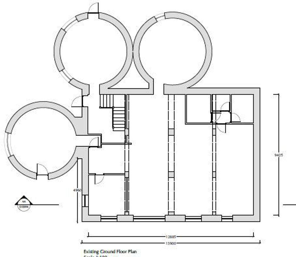
A rare freehold office investment set in an attractive converted Oast on the Mill Pond, currently producing £77,235 per annum. The building comprises two self-contained suites (ground floor offices and a refurbished first-floor yoga studio) and includes 19 car parking spaces — strong immediate income with a visible ARY of 8.58% at the asking price.
The location combines semi-rural character with good connectivity: East Malling station is a five-minute walk and Junction 4 of the M20 is within easy reach, making the site accessible to London commuters and local businesses. The property sits opposite a Grade II listed mill in a comfortable neighbourhood, adding locational charm to the investment proposition.
Key transactional considerations: the two occupational leases expire in August 2026 and April 2029 respectively, so there is medium-term lease roll risk. The building has an EPC rating D (97) and medium flood risk; prospective buyers should factor in energy improvements, flood mitigation and standard listed-building constraints. Business rates and VAT apply; purchasers should verify all costs and tenant covenant strength before offer.
Office for sale in Millbrook House, 114 Mill Street, East Malling, West Malling, Kent, ME19 6BU, ME19 — £1,250,000 • 1 bed • 1 bath • 6857 ft²
Office for sale in Park House, 110-112 Mill Street, East Malling, West Malling, Kent, ME19 6BU, ME19 — £625,000 • 1 bed • 1 bath • 1967 ft²
Office for sale in Nautilus Yachting, High Street, Edenbridge, TN8 — £550,000 • 1 bed • 1 bath • 2508 ft²
Light industrial facility for sale in Unit 1 Viewpoint Boxley Road, Boxley Road, Maidstone, Kent, ME14 2DZ, ME14 — £1,100,000 • 1 bed • 1 bath • 7798 ft²
Office for sale in 40 High Street, West Malling, Kent, ME19 6QR, ME19 — £625,000 • 1 bed • 1 bath • 1930 ft²
3 bedroom detached house for sale in The Oast, High Street, Aylesford, ME20 — £800,000 • 3 bed • 2 bath • 1295 ft²










































































