Compact, modern lodge with elevated countryside views and designated parking.
12-month park licence allows year-round occupancy
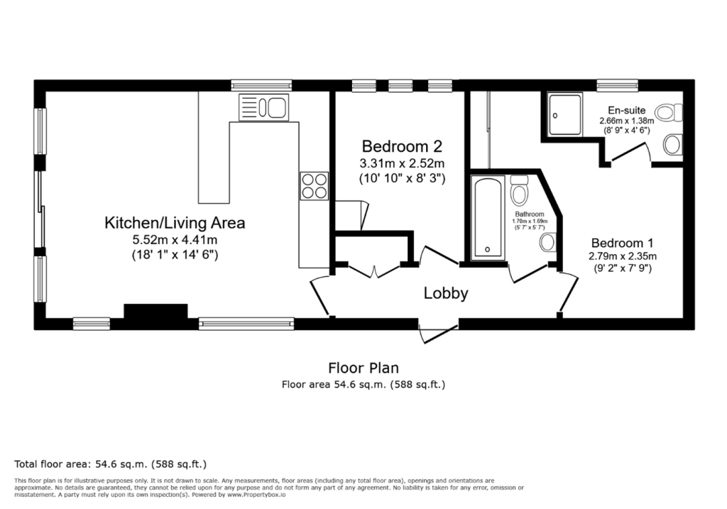
Set within Springfield Retreat, this two-bedroom Prestige Quindi lodge offers low-maintenance, year-round living with raised decking and far-reaching Devon countryside views. The compact layout (approximately 588 sq ft) suits downsizers or retirees seeking a comfortable second home with practical features like double glazing and designated off-street parking.
Financial advantages include site fees waived until January 2027 and a 12-month park licence permitting continuous occupation. The property may suit investors or holiday-use buyers, and finance may be available; do check availability of other homes on the park if wider choice is needed.
Important considerations are clear: the home is sold on a leisure licence, not freehold, and annual service charges are £4,500. The site is recorded as high flood risk and broadband speeds are slow — both matters to investigate if you require reliable internet or are concerned about flood resilience and insurance costs.
Overall this is a well-presented, modern lodge in a peaceful rural setting, offering immediate move-in potential and attractive short-term running costs (site fees free until 2027). Buyers should verify tenure details, insurance implications of the flood risk, and long-term park charges before committing.
2 bedroom mobile home for sale in Springfield Retreat, Tedburn St Mary, Exeter, Devon EX6 6EW, EX6 — £99,950 • 2 bed • 2 bath
2 bedroom lodge for sale in 2023 Swift Vendee, Springfield Retreat Lodge Park, Tedburn St Mary, Exeter, Devon, EX6 6EW, EX6 — £60,000 • 2 bed • 2 bath
3 bedroom mobile home for sale in Tedburn St Mary, EX6 — £35,000 • 3 bed • 2 bath • 800 ft²
2 bedroom mobile home for sale in Springfield Retreat, Tedburn St Mary, Exeter, Devon EX6 6EW, EX6 — £130,000 • 2 bed • 2 bath
3 bedroom mobile home for sale in Springfield Retreat, Tedburn St Mary, Exeter, Devon EX6 6EW, EX6 — £85,000 • 3 bed • 2 bath
2 bedroom park home for sale in Springfield Retreat, EX6 — £59,500 • 2 bed • 2 bath










































































