Two-bedroom split-level flat with private entrance and allocated parking, sold via auction..
Private entrance with split-level layout and period character
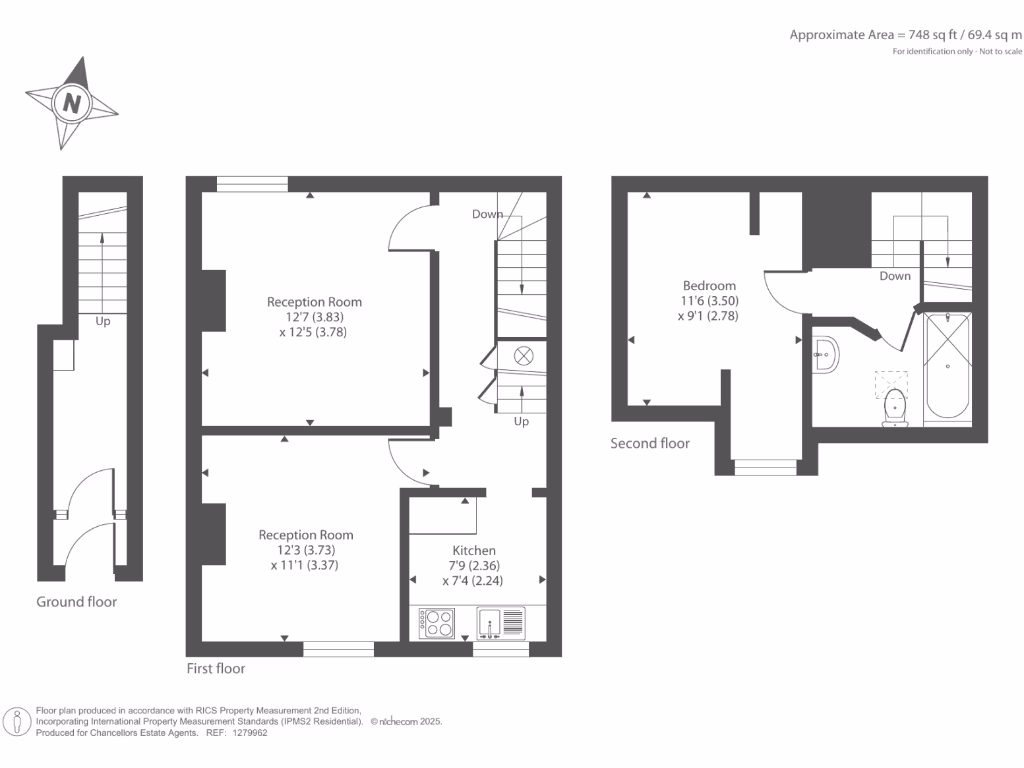
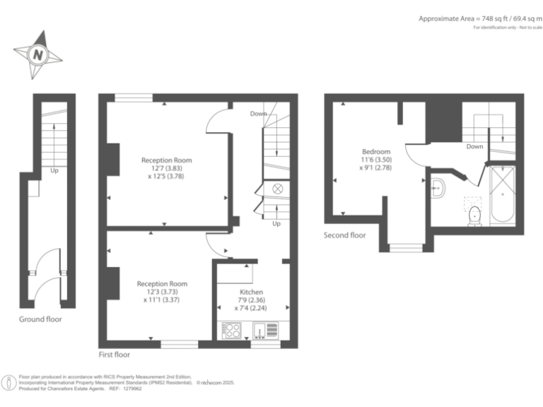
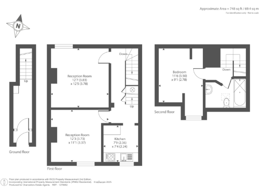
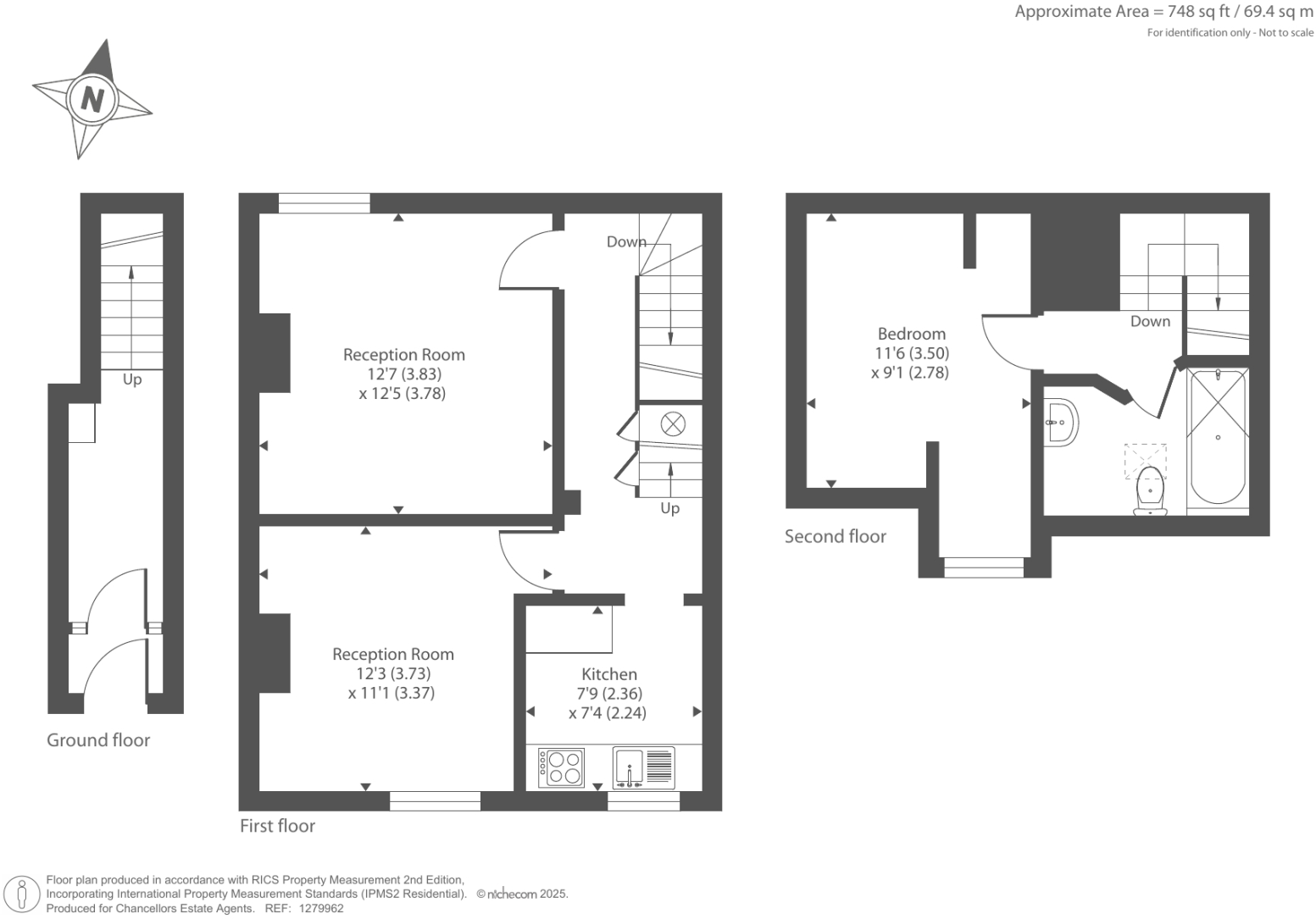
This split-level two-bedroom flat in Old Town, Swindon, offers clear rental or resale potential thanks to its private entrance, allocated parking and proximity to central Swindon (1.4 miles). Set within a Victorian mid-terrace, the apartment retains period character and provides two double bedrooms across 748 sq ft — a layout that suits small families or investor portfolios.
The property will be sold at auction with immediate exchange and a 28-day completion window. Buyers should note the sale is subject to a non-refundable 5% deposit on exchange plus a reservation fee (3.75% + VAT, minimum £6,000 inc VAT). The lease has around 90 years remaining (125-year term from 1990), so legal pack review is essential before bidding.
Practical considerations: heating is by electric room heaters only, walls are solid brick with no assumed insulation, and glazing is double but installation date is unknown. The flat will need updating and possible insulation/central heating works to bring running costs and comfort to modern standards. Crime in the area is recorded as very high, which may affect tenant demand and insurance costs.
For buyers prepared to invest time and budget into improvements, this property represents an affordable gateway into Old Town or a refurbishment project for the rental market. There is no onward chain, parking to the rear, and good local amenities and schools nearby, but bidders must factor auction fees, timescales and the property’s retrofit requirements into their offer.
2 bedroom apartment for sale in 2 Shelley Street, Swindon, Wiltshire, SN1 3PN, SN1 — £110,000 • 2 bed • 1 bath • 748 ft²
2 bedroom flat for sale in Swindon, Wiltshire, SN3 — £130,000 • 2 bed • 1 bath • 678 ft²
2 bedroom end of terrace house for sale in Shelley Street, Swindon, SN1 — £240,000 • 2 bed • 1 bath
4 bedroom terraced house for sale in Belle Vue Road, Swindon, SN1 — £350,000 • 4 bed • 2 bath • 1637 ft²
3 bedroom end of terrace house for sale in Radnor Street, Swindon, SN1 — £260,000 • 3 bed • 1 bath • 858 ft²
2 bedroom end of terrace house for sale in Dixon Street, Swindon, Wiltshire, SN1 — £195,000 • 2 bed • 1 bath • 654 ft²


















































































