**Standout Features:**
- Semi-detached two-bedroom home in Barnet, North London
- Available through Shared Ownership (25% share for £117,500)
- Private rear garden and two allocated driveways
- Good transport links to Central London (approx. 40 mins)
- Close to schools, parks, and local amenities
- Affordable monthly total charge of approximately £1,008.60
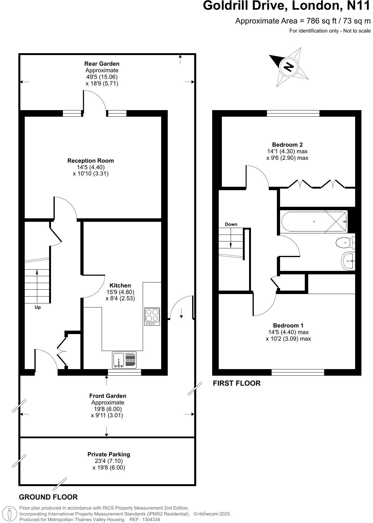
This charming two-bedroom semi-detached house is a fantastic opportunity for first-time buyers or families looking for a budget-friendly property. Situated in an inviting residential area, this home features a spacious living room with patio doors, a separate kitchen with dining area, and two well-appointed bedrooms with fitted cupboards. The property boasts a private rear garden for outdoor enjoyment and off-street parking for added convenience.
Located in a vibrant, multicultural neighborhood, your new home provides excellent transport connections to Central London within about 40 minutes, making it ideal for commuters. With various supermarkets, cafes, and parks like Brunswick Park nearby, this property promises a balanced lifestyle. The home is offered under Shared Ownership, which makes it accessible with a low 5% minimum deposit.
However, it's important to note the property is leasehold, and prospective buyers should assess the lease duration for mortgage implications. The shared ownership structure requires meeting eligibility criteria, and annual rent increases occur every April. Don’t miss this opportunity to secure an affordable home in one of London’s up-and-coming areas—Contact us now before this desirable offering is gone!
2 bedroom apartment for sale in Collison Avenue, Barnet, EN5 — £161,000 • 2 bed • 1 bath • 762 ft²
2 bedroom flat for sale in The Hyde, London, NW9 — £246,250 • 2 bed • 2 bath • 785 ft²
2 bedroom apartment for sale in Laburnham Close, High Barnet, Barnet, EN5 — £207,500 • 2 bed • 1 bath • 773 ft²
2 bedroom apartment for sale in Park Road, New Barnet, Barnet, EN4 — £116,000 • 2 bed • 1 bath • 643 ft²
2 bedroom flat for sale in The Hyde, London, NW9 — £123,125 • 2 bed • 2 bath • 785 ft²
1 bedroom flat for sale in Pennington Drive, Winchmore Hill, London, N21 — £137,500 • 1 bed • 1 bath • 391 ft²














































































