Newly renovated five-bedroom detached house with large garden and excellent schools nearby.
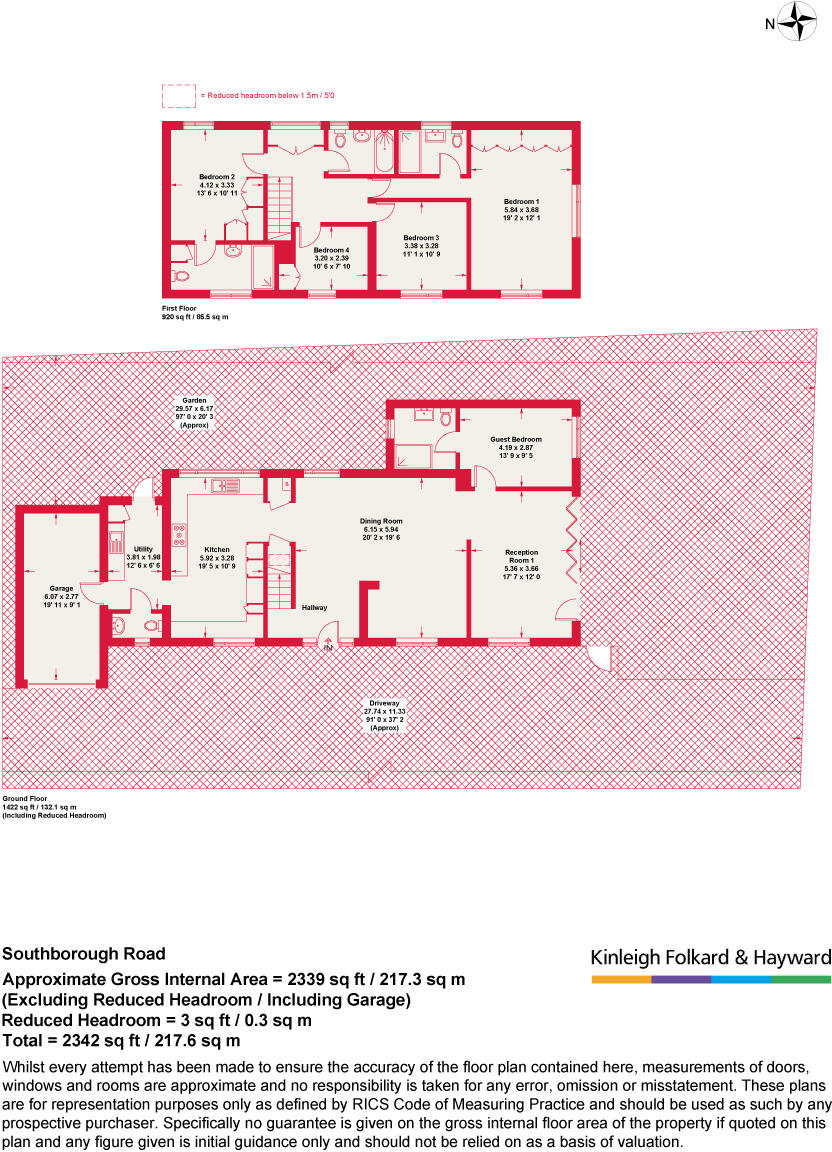
- Newly renovated and extended five-bedroom detached home
- Four bathrooms including two ensuite shower rooms
- South-facing landscaped garden ideal for families
- 89ft carriage driveway, garage and extensive parking
- Exceptionally close to Bickley and Chislehurst stations
- Excellent local schools within walking distance
- Built 1967–75; cavity walls likely need insulation upgrade
- Chain free and fast broadband; council tax band not specified
Spacious, newly renovated five-bedroom detached home in Bickley offering contemporary family living within easy reach of two stations. The house has been thoughtfully extended and finished to a high standard, with an open-plan kitchen/breakfast room, four bathrooms and flexible ground-floor accommodation that can serve as a bedroom or home office.
Light-filled living spaces flow to a south-facing landscaped garden ideal for children and outdoor entertaining. A sweeping 89ft carriage driveway plus garage provide extensive parking; there is scope for gated access (STPP). The house sits on a large plot in an affluent area with fast broadband, low crime and no flood risk.
Families will value proximity to excellent local schools including Bickley Park, Bromley High and St George’s (Outstanding), while commuters benefit from exceptionally close access to Bickley and Chislehurst stations. The property is chain-free and ready to occupy.
Practical points: the house was constructed in the late 1960s/early 1970s and, while fully refurbished and double glazed, the cavity walls are assumed to lack added insulation and may benefit from an upgrade. Council tax band is not specified. Mobile signal is average.
5 bedroom detached house for sale in Pines Road, Bickley, Kent, BR1 — £1,500,000 • 5 bed • 2 bath • 2569 ft²
5 bedroom detached house for sale in Boulter Close, Bromley, BR1 — £1,250,000 • 5 bed • 4 bath • 2564 ft²
4 bedroom detached house for sale in Page Heath Lane, Bickley, Bromley, BR1 — £1,150,000 • 4 bed • 2 bath • 2500 ft²
5 bedroom detached house for sale in Piermont Place, Bromley, BR1 — £1,600,000 • 5 bed • 4 bath • 2772 ft²
4 bedroom detached house for sale in Hurstwood Drive, Bromley, BR1 — £950,000 • 4 bed • 2 bath • 2400 ft²
5 bedroom detached house for sale in Bickley Park Road, Bickley, Kent, BR1 — £2,200,000 • 5 bed • 4 bath • 4339 ft²










































































































































