Three-bed semi in cul-de-sac with large garden, close to schools and town centre.
Three bedrooms and family bathroom
Large rear garden, spacious for outdoor use
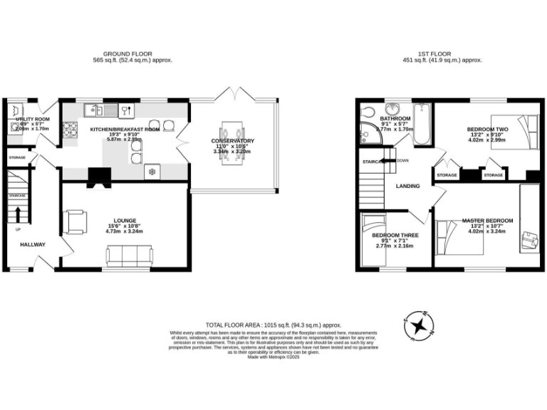
Freehold; approx 1,015 sq ft living space
Cul-de-sac location; close to Chorley town centre
Excellent travel links to M6/M61 and nearby stations
EPC D; windows double-glazed before 2002 may need updating
On-street parking only; no private driveway
Very deprived area with higher local crime rates
Set on a quiet cul-de-sac in Chorley, this three-bedroom semi-detached home offers practical family living with generous outdoor space. The property is freehold, around 1,015 sq ft, and benefits from a large rear garden and easy walking access to Chorley town centre and local schools.
Inside, you’ll find a comfortable lounge, a modern kitchen with integrated appliances and a useful utility room, plus a conservatory/dining area that opens onto the garden. The first floor provides three well-proportioned bedrooms and a four-piece family bathroom. The home has gas central heating and double glazing installed before 2002.
Important considerations: the property sits in a very deprived area with a higher local crime rate, and parking is on-street only. The EPC is rated D and some original features (including older windows) may benefit from updating. These factors have been reflected in the price, offering scope for improvement and potential value uplift for buyers prepared to upgrade.
This house will suit families seeking good local schools and commuter links or buyers looking for a solid, characterful home with a large garden and room to modernise. Early viewing is recommended to assess the accommodation and any planned improvements.
3 bedroom semi-detached house for sale in Larch Avenue, Chorley, PR6 — £179,995 • 3 bed • 1 bath • 1009 ft²
3 bedroom semi-detached house for sale in Fountains Close, Chorley, PR7 — £219,995 • 3 bed • 1 bath • 903 ft²
3 bedroom semi-detached house for sale in Bowland Avenue, Chorley, PR6 — £119,995 • 3 bed • 1 bath • 950 ft²
3 bedroom semi-detached house for sale in Coppull Road, Chorley, PR7 — £239,995 • 3 bed • 2 bath • 1232 ft²
3 bedroom semi-detached house for sale in Duxbury Gardens, Chorley, PR7 — £229,995 • 3 bed • 2 bath • 787 ft²
3 bedroom semi-detached house for sale in Weld Avenue, Chorley, Lancashire, PR7 — £175,000 • 3 bed • 1 bath • 932 ft²














































































































