**Standout Features:**
- Freehold, modern detached family home
- 4 spacious bedrooms, 2 bathrooms
- No onward chain for immediate occupancy
- Large private rear garden, perfect for families
- Attached garage and off-street parking
- Located in a quiet cul-de-sac
- Close to highly-rated schools and amenities
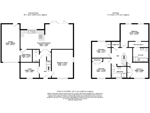
This modern, well-maintained 4-bedroom, 2-bathroom detached home offers a rare opportunity in a tranquil cul-de-sac on the outskirts of Ewell Village, making it ideal for families or investors looking for potential rental income. With an impressive open-plan kitchen/diner leading to a generous private garden, this space is designed for comfort and entertaining. The property boasts an attached garage and off-street parking, plus it is chain-free, allowing for a smooth transition into your new home.
Enjoy access to highly-rated schools, including top-performing Epsom and Ewell High School and renowned St Clement's Catholic Primary School, adding exceptional value for families. While the EPC Rating of B offers energy efficiency, it’s worth noting that broadband speeds are currently slow, which could be a consideration for remote workers. The area, classified as affluent, provides all necessary amenities while retaining a comforting sense of community.
Don’t miss out on this exclusive opportunity – a spacious family home in a sought-after location with potential for personal touches and future enhancements!
5 bedroom detached house for sale in Chatsfield, Epsom, KT17 — £900,000 • 5 bed • 2 bath • 2512 ft²
3 bedroom semi-detached house for sale in Millais Crescent, Ewell, Surrey, KT19 — £529,000 • 3 bed • 2 bath • 1060 ft²
4 bedroom detached house for sale in Mongers Lane, off Reigate Road, Ewell Village, KT17 — £925,000 • 4 bed • 1 bath • 3372 ft²
3 bedroom semi-detached house for sale in Kingston Road, Ewell Village, Surrey, KT17 — £600,000 • 3 bed • 2 bath • 1162 ft²
3 bedroom link detached house for sale in Bluegates, Ewell, KT17 — £725,000 • 3 bed • 1 bath • 1222 ft²
3 bedroom detached house for sale in Primrose Walk, Ewell Village, KT17 — £600,000 • 3 bed • 2 bath • 1353 ft²














































































































