Bright two-bed with long lease and excellent transport links.
Share-of-freehold with approximately 952-year lease remaining
Chain free — available for immediate exchange
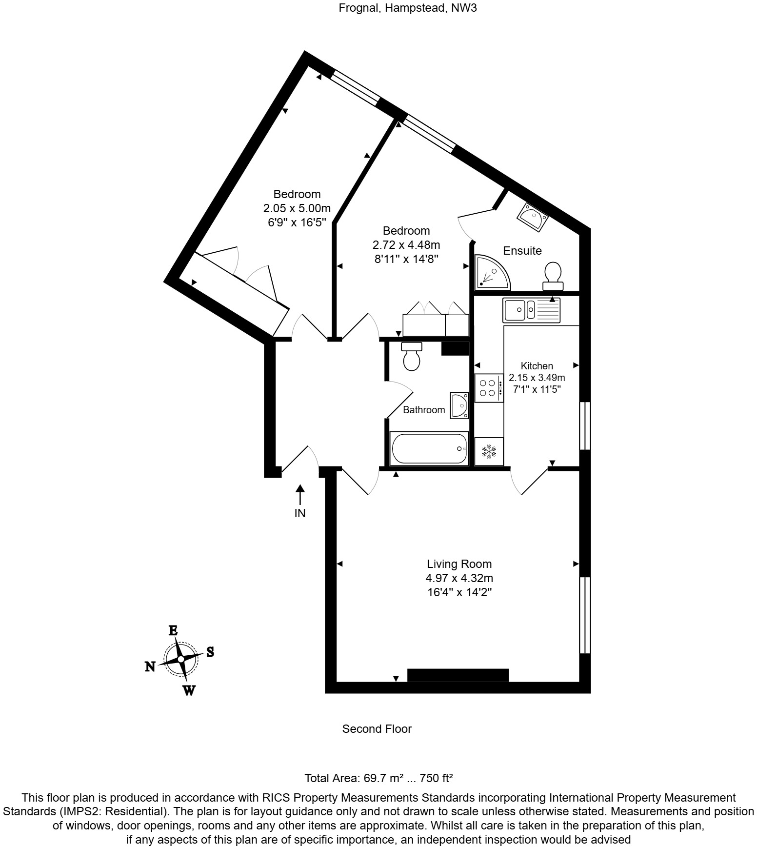
Two double bedrooms and two bathrooms, principal en suite
High ceilings, large double-glazed sash windows throughout
Approx. 750 sq ft; efficient layout with built-in storage
Service charge c. £2,200 per annum; sinking fund £1,350 p.a.
Council Tax Band E (Camden) — above-average ongoing cost
Timber-frame walls likely without added insulation — investigate thermal performance
Set on the second (top) floor of an attractive Victorian conversion in Frognal, this two-bedroom apartment combines period character with straightforward modern upgrades. High ceilings, large double-glazed sash windows and a decorative fireplace give the living room a bright, airy feel. The separate fitted kitchen and two bathrooms make the layout practical for couples, sharers or a small family.
The property sits on a long share-of-freehold lease (approx. 952 years) and is offered chain free, ready for immediate occupation. Recent upgrades include new double-glazed sash windows and a modern boiler, reducing immediate maintenance needs. The apartment’s c.750 sq ft footprint and built-in bedroom storage make efficient use of space.
Buyers should note the annual service charge (£2,200) and council tax (Band E) when budgeting. Construction details indicate timber-frame walls with assumed no added insulation, so buyers looking for higher thermal performance may wish to investigate further. Selected images have been digitally staged to show potential furniture layouts; the property is currently unfurnished.
Location is a key strength: leafy Frognal, Hampstead Village amenities and Hampstead Heath close by, with Finchley Road Tube and Overground stations within a few minutes’ walk. The local area suits professionals and families seeking excellent schools and convenient transport links.
2 bedroom flat for sale in Frognal, Hampstead, NW3 — £695,000 • 2 bed • 2 bath • 704 ft²
3 bedroom flat for sale in Frognal, Hampstead, NW3 — £795,000 • 3 bed • 2 bath • 1001 ft²
2 bedroom apartment for sale in Frognal, Hampstead, London, NW3 — £1,000,000 • 2 bed • 1 bath • 857 ft²
2 bedroom flat for sale in Finchley Road, Hampstead, NW3 — £499,950 • 2 bed • 1 bath • 778 ft²
1 bedroom apartment for sale in Frognal, Hampstead, NW3 — £500,000 • 1 bed • 1 bath • 406 ft²
2 bedroom apartment for sale in Fitzjohns Avenue, London, NW3 — £895,000 • 2 bed • 2 bath • 785 ft²






































































