Large converted warehouse office near King's Cross with high ceilings and private courtyard — vacant possession.
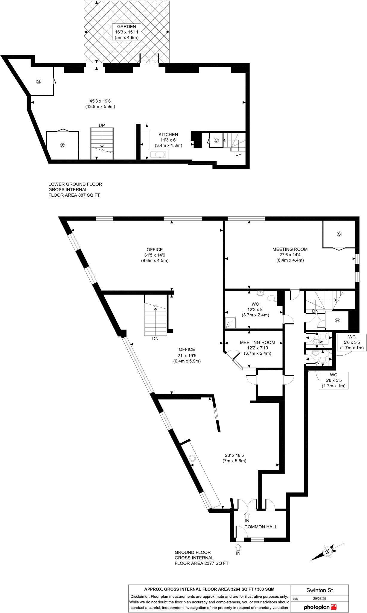
Approximately 2,622 sq ft former warehouse office space
A substantial former warehouse arranged over split-level ground floors, this 2,622 sq ft office offers up to 3.4m ceiling heights, exposed iron columns and large arched windows that deliver abundant natural light. The space is currently offered with vacant possession and a separate freehold title for the secluded rear courtyard, providing operational flexibility or separate leasing potential.
Located moments from St Pancras and the King’s Cross regeneration — including Google campus, Central St. Martins and Coal Drops Yard — the building benefits from excellent transport links and a vibrant local economy. The long 999‑year virtual freehold provides security of tenure for owner-occupiers or investors.
The property will suit creative businesses, a single-unit live/work conversion or an investor targeting central London refurbishment opportunities. It’s presented as a largely open-plan industrial shell: practical for adaptive reuse but likely requiring fit-out and cosmetic renovation to meet modern office standards.
Buyers should note material considerations: the surrounding locality records very high crime levels and sits within a deprived area classification, which may affect tenant mix and insurance costs. External amenity is limited to a small-to-medium courtyard rather than a full garden, and internal rooming is split over levels which could limit simple sub-division without works.
Office for sale in 5 Underwood Street, London, N1 7LY, N1 — £999,999 • 1 bed • 1 bath • 1812 ft²
Office for sale in 1 & 3B Underwood Row, Shoreditch, London, N1 7LZ, N1 — £2,000,000 • 1 bed • 1 bath • 3763 ft²
Office for sale in 5 Maidstone Buildings Mews, London, SE1 1GN, SE1 — £1,000,000 • 1 bed • 1 bath • 2563 ft²
Office for sale in The Piano Works, 113-117 Farringdon Road, Farringdon, London, EC1R 3BX, EC1R — £1,425,000 • 1 bed • 1 bath • 2055 ft²
2 bedroom flat for sale in Albion Yard,
Kings Cross, N1 — £635,000 • 2 bed • 2 bath • 732 ft²
Office for sale in 82 Kingsland Road, London, E2 8DP, E2 — £2,250,000 • 1 bed • 1 bath • 3856 ft²






























































