Well-presented one-bedroom shared-ownership flat with parking, close to Oxford and ideal for first-time buyers.
Double bedroom, living room, kitchen and family bathroom
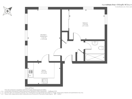
A well-presented one-bedroom first-floor flat set within a small three-apartment development in Greater Leys, about 3.5 miles from Oxford city centre. The accommodation includes a double bedroom, living room, kitchen and bathroom across approximately 505 sq ft, with the practical benefit of off-street parking. Available as an end-of-chain, it offers a straightforward route onto the local property ladder.
This home is offered as shared ownership (noted as 100% shared ownership). The legal papers state a lease term of 119 years from 22/12/1998; records also list 92 years remaining—buyers should verify the current lease length and any associated shared ownership conditions before committing. Heating is mains gas via a boiler and radiators; windows are double glazed (install date unknown).
The flat suits first-time buyers or investors seeking a manageable, low-maintenance pied-à-terre close to transport links and local amenities. Broadband and mobile signal are strong here, and local schools include two Good-rated primaries nearby. There is no identified flood risk and council tax is described as inexpensive.
Drawbacks to note plainly: tenure is leasehold and the shared ownership status may carry additional terms and restrictions. The building dates from the 1983–1990 period, so some buyers may wish to check service records and communal maintenance arrangements. Any purchaser should confirm lease details, service charges (if any) and the precise shared ownership structure prior to offer.
1 bedroom flat for sale in Greater Leys, Oxford, OX4 — £102,500 • 1 bed • 1 bath • 510 ft²
1 bedroom flat for sale in East Oxford, Oxford, OX4 — £150,000 • 1 bed • 1 bath • 436 ft²
1 bedroom maisonette for sale in Little Bury, Oxford, OX4 — £162,000 • 1 bed • 1 bath • 310 ft²
2 bedroom flat for sale in New Hinksey, Oxford, OX1 — £90,000 • 2 bed • 1 bath • 678 ft²
2 bedroom flat for sale in New Hinksey, Oxford, OX1 — £280,000 • 2 bed • 1 bath • 749 ft²
2 bedroom flat for sale in Reliance Way, Oxford, Oxfordshire, OX4 — £112,000 • 2 bed • 1 bath • 680 ft²










































































