Turnkey interior, garden and parking steps from town amenities..
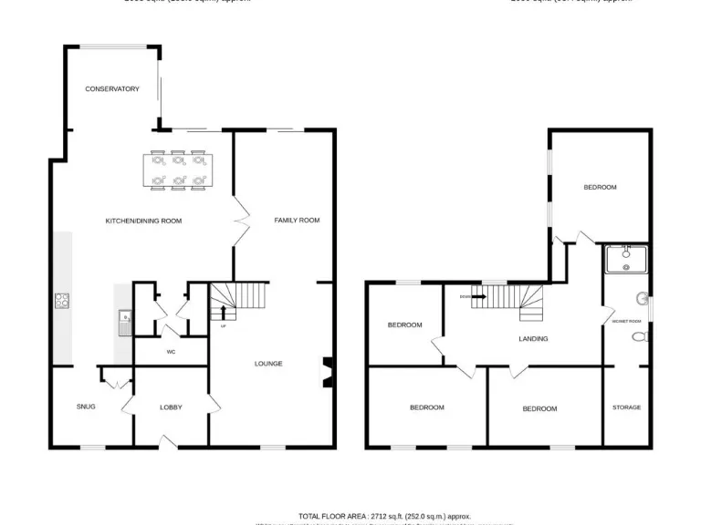
- Four bedrooms with large overall floor area (approx. 2,712 sq ft)
- Brand new kitchen and newly fitted bathroom
- Two reception rooms plus snug; flexible family layout
- Decent rear garden and off-street + permit parking
- Freehold, mains gas boiler and radiators (efficient heating)
- Single bathroom only for four bedrooms (possible constraint)
- Granite walls likely uninsulated; glazing installed before 2002
- Located in a very deprived ward with average local crime levels
Light-filled end-of-terrace with four bedrooms and generous reception space, recently renovated to a high standard. The property benefits from a brand-new kitchen and bathroom, gas central heating, and double glazing, offering a turn-key option for a growing household. A decent-sized rear garden and off-street/permit parking add practical everyday convenience in a central Haverfordwest location.
Built before 1900, the house retains period character externally with sash windows and granite walls, while interiors feel refreshed. The large overall footprint (approx. 2,712 sq ft) and multiple reception rooms provide flexible layouts for family living or home-working. Flood risk is low and the property is freehold with affordable council tax.
Important to note: there is only one bathroom for four bedrooms, which may limit appeal until an additional WC/bathroom is added. External walls are likely uninsulated as constructed from granite/whinstone, and the double glazing predates 2002, so there may be scope (and cost) for further energy-efficiency upgrades. The property sits in an area with higher deprivation metrics and average crime levels—buyers should weigh local socio-economic factors alongside the house’s strong internal space and recent refurbishment.
4 bedroom terraced house for sale in Prendergast, Haverfordwest, SA61 — £169,950 • 4 bed • 1 bath • 963 ft²
3 bedroom terraced house for sale in Tower Hill, Haverfordwest, Pembrokeshire, SA61 — £179,000 • 3 bed • 1 bath • 1277 ft²
4 bedroom town house for sale in Haverfordwest, SA61 — £280,000 • 4 bed • 2 bath • 1761 ft²
4 bedroom semi-detached bungalow for sale in Castle High, Haverfordwest, SA61 — £220,000 • 4 bed • 2 bath • 1032 ft²
5 bedroom terraced house for sale in Tower Hill, Haverfordwest, SA61 — £159,000 • 5 bed • 2 bath • 1526 ft²
4 bedroom terraced house for sale in Kensington Gardens, Haverfordwest, Pembrokeshire, SA61 — £245,000 • 4 bed • 2 bath • 1583 ft²


































































































































































