Spacious character house with large garden and strong village links to schools and trains.
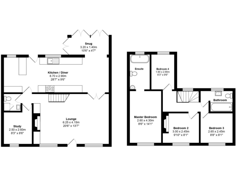
- Georgian period features: sash windows, high ceilings, exposed beams
- Open-plan kitchen/diner with three sets of French doors
- Principal bedroom with en-suite bathroom
- Study and downstairs WC ideal for home working
- Generous rear garden with two decked seating areas
- Off-street parking via double gates and gravel driveway
- Oil central heating and EPC F — likely higher running costs
- Solid brick walls (pre-1900) assumed without wall insulation
This extended Victorian semi delivers a mix of period character and practical family space in the heart of Wimbotsham. High ceilings, sash windows and exposed beams combine with a large open-plan kitchen/diner and a cosy study to create flexible living for work, play and entertaining. The principal bedroom has an en-suite; three further bedrooms and a family bathroom complete the upper floor.
Outside, the generous rear garden has two decked seating areas, established planting and double gates to a gravel driveway providing useful off-street parking. The property overlooks the village green and sits close to local amenities, a well-regarded primary school and the nearby train stations at Downham Market and King’s Lynn for commuter links.
Important practical points: the house runs on oil-fired central heating and has an EPC rating of F. The property is a solid-brick, pre-1900 build with double glazing added but with no wall insulation assumed — buyers should expect higher running costs and consider insulation and energy upgrades. A full survey and service checks are recommended before purchase.
4 bedroom semi-detached house for sale in Tinkers Lane, Wimbotsham, PE34 — £440,000 • 4 bed • 2 bath • 2293 ft²
3 bedroom character property for sale in Church Road, Wimbotsham, King's Lynn, PE34 — £400,000 • 3 bed • 1 bath • 1400 ft²
5 bedroom detached house for sale in Honey Hill, Wimbotsham, King's Lynn, PE34 — £450,000 • 5 bed • 2 bath • 1486 ft²
3 bedroom semi-detached house for sale in Lynn Road, Wimbotsham, King's Lynn, PE34 — £265,000 • 3 bed • 1 bath • 1292 ft²
3 bedroom semi-detached house for sale in West Way, Wimbotsham, King's Lynn, PE34 — £325,000 • 3 bed • 1 bath • 851 ft²
3 bedroom semi-detached house for sale in Napthans Lane, Wimbotsham, King's Lynn, PE34 — £303,500 • 3 bed • 1 bath • 751 ft²










































































































































