**Standout Features:**
- Prime High Street location in bustling Cardigan
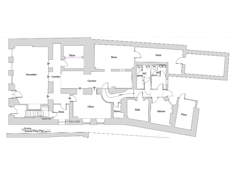
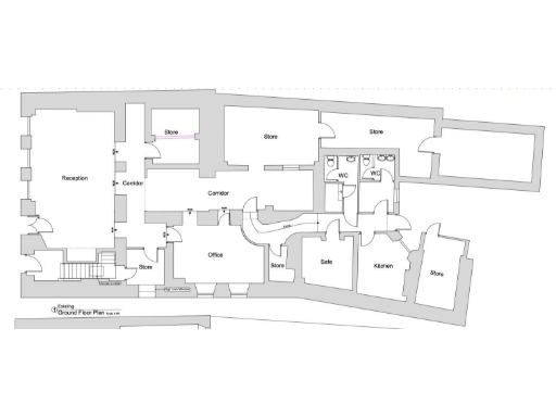
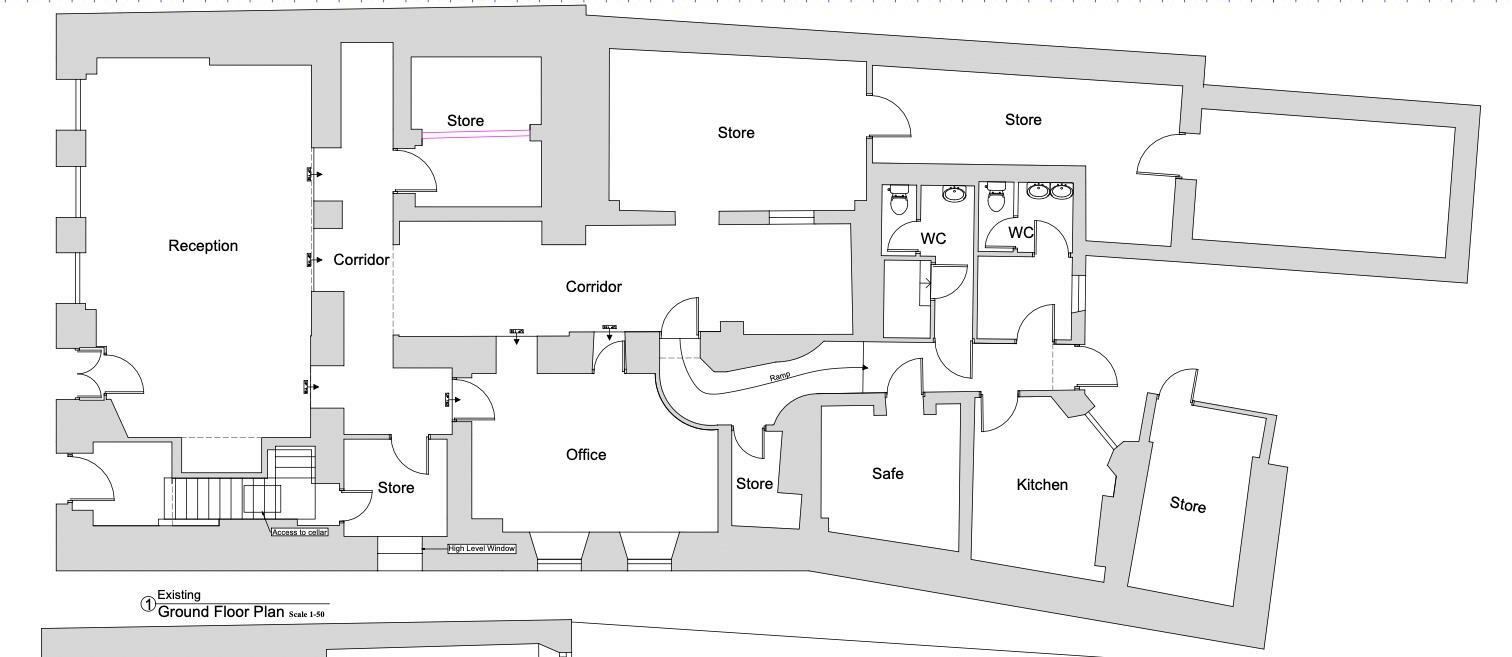
- Former Natwest Bank with extensive ground floor space of approximately 2000 sq. ft.
- Rear parking for added convenience
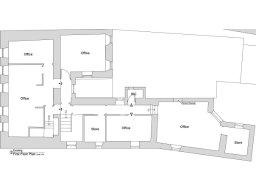
- Potential for commercial conversion (A1/A2 classification) and upper floors suitable for residential development (flats/HMO)
- Historic Grade II listed Georgian building offering charm and character
- Proximity to major retailers like Barclays and Specsavers
**Summary:**
Discover an exceptional commercial space ideally positioned on High Street, Cardigan, offering fantastic visibility and potential. This former Natwest Bank features around 2000 sq. ft. of versatile ground floor space, perfect for a variety of commercial purposes, such as retail, office, or dining establishments (subject to planning approval). With rear parking available, this property combines practicality with prime location flair.
The upper floors present an exciting development opportunity for those interested in residential conversions, potentially housing flats or an HMO, particularly appealing in a town with high demand for accommodation. As a Grade II listed building, this Georgian gem not only captures historical charm but also offers an expansive plot ready for your vision.
While the property requires modernization, it holds significant value in a vibrant, high-footfall area surrounded by essential amenities and services. Don’t miss this chance to invest in Cardigan’s commercial landscape—this opportunity won’t last long!
Commercial property for sale in St. Mary Street, Cardigan, SA43 — £140,000 • 1 bed • 1 bath • 1449 ft²
Commercial property for sale in St Mary Street, Cardigan, SA43 — £217,000 • 1 bed • 1 bath • 1580 ft²
1 bedroom town house for sale in St. Mary Street, Cardigan, SA43 — £220,000 • 1 bed • 1 bath • 551 ft²
Commercial property for sale in Pendre, Cardigan, SA43 — £290,000 • 4 bed • 1 bath • 722 ft²
Commercial property for sale in Castle Street, Cardigan, SA43 — £265,000 • 3 bed • 1 bath • 646 ft²
3 bedroom detached house for sale in Castle Street, Cardigan, SA43 — £265,000 • 3 bed • 1 bath • 646 ft²






























































