**Standout Features:**
- Newly built 3-bedroom detached house, completed in February 2023
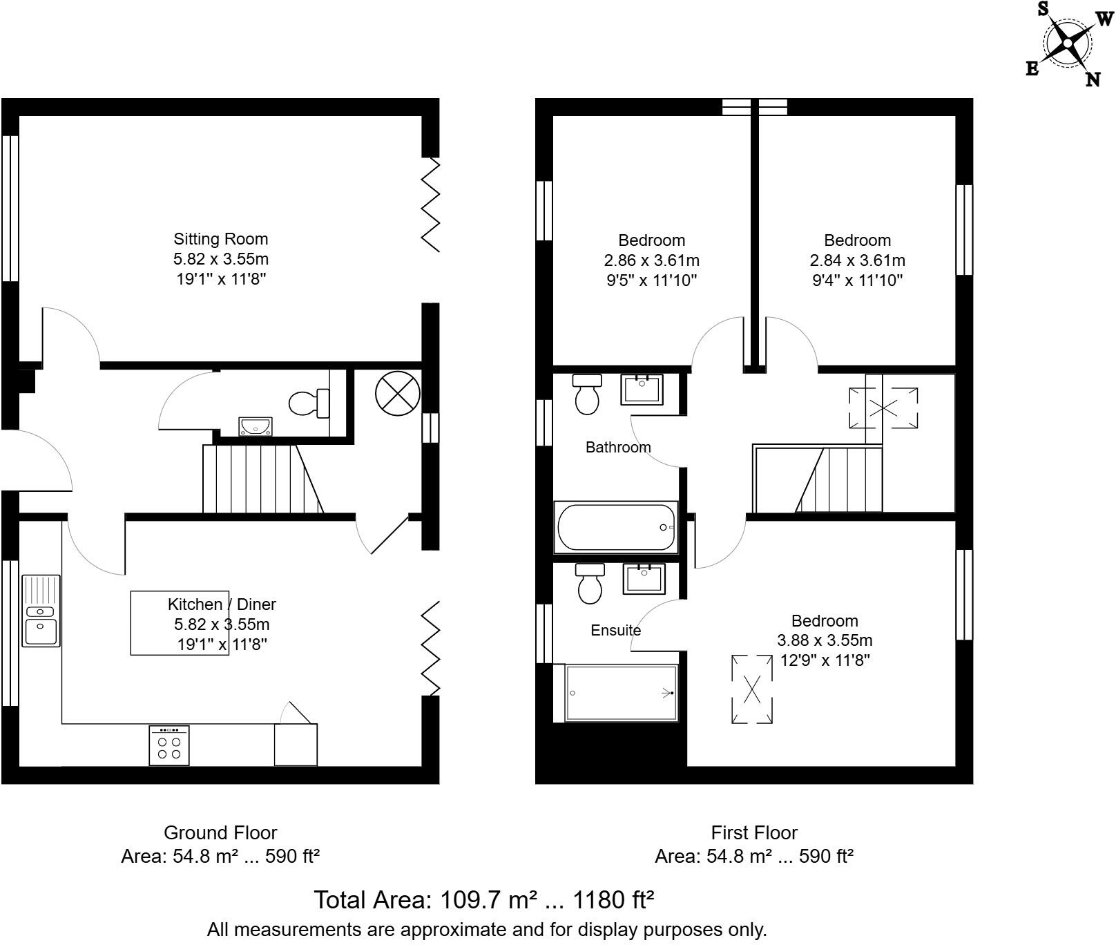
- Spacious kitchen/dining room over 19ft long and a 19'1 double aspect sitting room
- Two modern bathrooms and additional cloakroom
- Private garden, off-street parking for two cars
- Located in the desirable village of Wadhurst, within walking distance to local amenities
- Excellent transport links to London and surrounding areas (Wadhurst Station approx. 1 mile away)
This contemporary 3-bedroom detached house in the heart of Wadhurst is a perfect find for families and first-time buyers alike. With a stylishly designed kitchen/dining area and a light-filled sitting room, this home is built for comfort and entertaining. Enjoy the low upkeep benefits of a brand new build, complete with a private garden and parking space for two vehicles, ensuring an easy lifestyle. The location boasts a range of local shops, cafes, and essential services, while offering a serene village atmosphere and the stunning surrounding countryside.
While the property showcases high-quality finishes and modern amenities—including underfloor heating and air source heat pumps—potential buyers should be aware that the landscaping is still in a new stage of development. This presents an opportunity for personalization and further enhancements tailored to your taste. The expected EPC rating of B ensures energy efficiency, promising lower utility bills and a smaller carbon footprint.
Seize the chance to enjoy village life, secure in a home designed for today's living, while benefiting from excellent local schools and low crime rates in the area. Don’t wait—this exclusive opportunity won't last long!
2 bedroom detached house for sale in High Street, Wadhurst, East Sussex, TN5 — £695,000 • 2 bed • 2 bath • 1108 ft²
3 bedroom detached house for sale in High Street, Wadhurst, East Sussex, TN5 — £995,000 • 3 bed • 2 bath • 2000 ft²
5 bedroom detached house for sale in Wadhurst, East Sussex, TN5 — £899,950 • 5 bed • 3 bath • 2039 ft²
2 bedroom terraced house for sale in Wadhurst, East Sussex, TN5 — £335,000 • 2 bed • 2 bath • 844 ft²
3 bedroom detached house for sale in 1A High Street, East Grinstead, RH19 — £550,000 • 3 bed • 2 bath • 1361 ft²
2 bedroom end of terrace house for sale in Little Park, Wadhurst, East Sussex, TN5 — £250,000 • 2 bed • 1 bath • 538 ft²


















































































