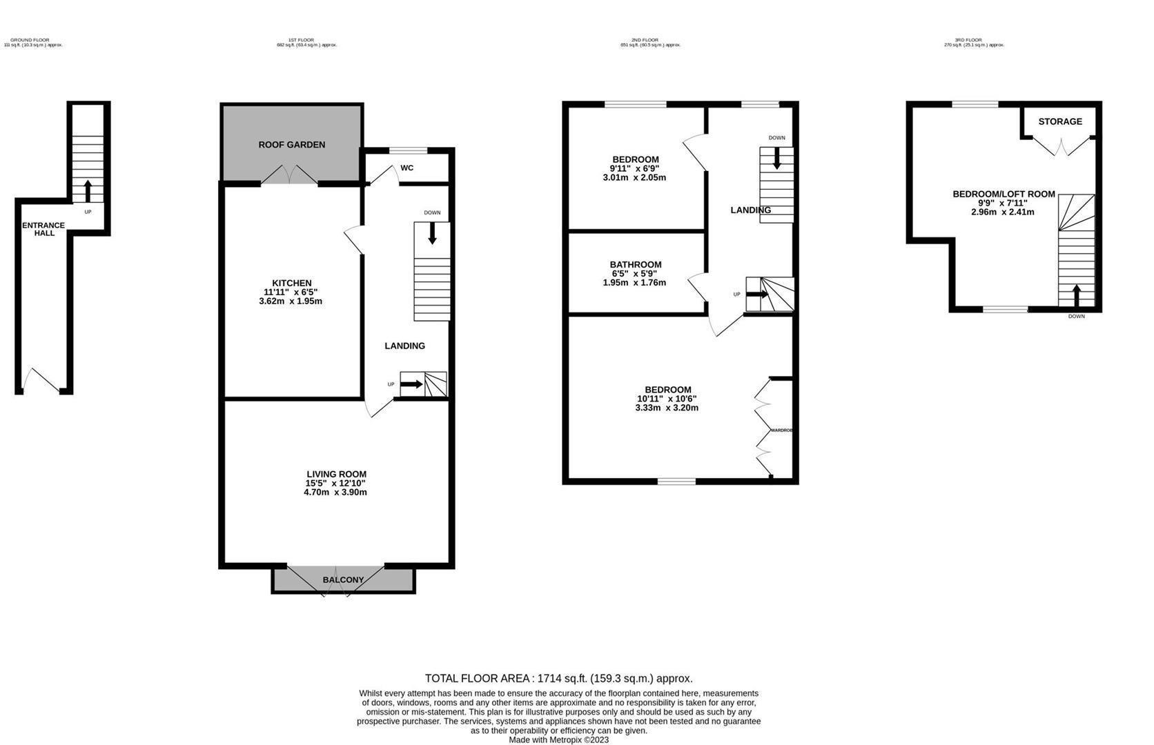
Grade II listed three-bed maisonette with roof terrace and sea glimpses, chain free with a new 99-year lease.
Grade II listed maisonette over three storeys
A compact, characterful three‑bed maisonette tucked into Hastings Old Town, arranged over three floors with a sunny roof terrace and glimpses of the sea. The living room at the front benefits from high ceilings, an arched sash window and original cornicing that give the apartment genuine period charm. The fitted kitchen leads to the terrace, providing an outdoor space rare for town‑centre flats.
This Grade II listed property is offered chain free with a new 99‑year lease, making it suitable for first‑time buyers or investors seeking a coastal pied‑à‑terre. The internal footprint is modest (approx. 568 sq ft) and arranged vertically, which maximises usable space but may not suit those wanting single‑level living. There is one family bathroom and three bedrooms across the upper floors and converted loft.
Practical considerations are important: listed status will restrict structural changes; the solid brick walls are likely uninsulated and the layout would benefit from cosmetic updating. The area is recorded as deprived with a higher crime rate than average, though the immediate Old Town location places cafés, independent shops, transport links and the seafront on your doorstep. Broadband and mobile signal are strong, and council tax is very low.
Overall this maisonette offers authentic Victorian character, a rare town‑centre roof terrace and coastal proximity — best suited to buyers prepared to work with listing constraints and invest in modernisation, or to investors seeking a leasehold coastal rental with immediate occupancy and no onward chain.
3 bedroom maisonette for sale in George Street, Hastings, TN34 — £250,000 • 3 bed • 1 bath • 1113 ft²
1 bedroom apartment for sale in Tackleway, Hastings, TN34 — £195,000 • 1 bed • 1 bath • 403 ft²
3 bedroom maisonette for sale in Russell Street, Hastings, TN34 — £210,000 • 3 bed • 1 bath • 605 ft²
2 bedroom maisonette for sale in George Street, Hastings, TN34 — £250,000 • 2 bed • 1 bath • 819 ft²
2 bedroom maisonette for sale in High Street, Old Town,Hastings, TN34 — £375,000 • 2 bed • 1 bath • 734 ft²
3 bedroom terraced house for sale in Marine Parade, Hastings, TN34 — £450,000 • 3 bed • 1 bath • 1044 ft²


























































