Bright three-bedroom house near good schools and fast broadband for modern family life.
- Three bedrooms, bedroom one with en suite
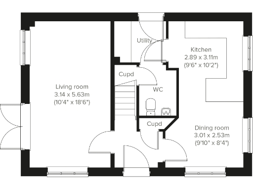
- Open-plan kitchen/dining with integrated appliances
- Living room with French doors to garden
- Utility room and downstairs WC for practical family use
- Small overall internal size (approx. 368 sq ft)
- Small plot; compact garden and limited outdoor space
- Allocated off-street parking; freehold new build
- Local area shows higher crime and deprivation statistics
This three-bedroom new-build Barnwood offers thoughtful family-focused layout on a compact plot. The ground floor has an open-plan kitchen/dining area with integrated appliances, a useful utility room, downstairs WC and a living room that opens via French doors onto the garden. Bedroom one includes an en suite and there is a separate family bathroom on the first floor.
The house benefits from allocated off-street parking, excellent mobile signal and fast broadband — practical for working from home and modern family life. Local schooling is strong, with several good primary and secondary options nearby, including a top-performing grammar school within easy reach.
Important factual notes: the overall property size and plot are small (total approx. 368 sq ft) which suits buyers seeking a compact family home rather than extensive living space. The surrounding area records higher crime and deprivation statistics, and council tax banding will only be confirmed post-occupation. Tenure is freehold and the property is a new build.
This home will suit buyers wanting a low-maintenance, contemporary family base close to local schools and city amenities. Consider the modest internal floor area and neighbourhood profile when assessing suitability and future resale expectations.
3 bedroom detached house for sale in Adlam Way,
Salisbury,
Wiltshire,
SP2 9FA, SP2 — £405,000 • 3 bed • 1 bath • 369 ft²
3 bedroom detached house for sale in Adlam Way,
Salisbury,
Wiltshire,
SP2 9FA, SP2 — £400,000 • 3 bed • 1 bath • 368 ft²
3 bedroom semi-detached house for sale in Adlam Way,
Salisbury,
Wiltshire,
SP2 9FA, SP2 — £350,000 • 3 bed • 1 bath • 319 ft²
3 bedroom semi-detached house for sale in Adlam Way,
Salisbury,
Wiltshire,
SP2 9FA, SP2 — £345,000 • 3 bed • 1 bath • 662 ft²
3 bedroom detached house for sale in Adlam Way,
Sailsbury,
SP2 9FW, SP2 — £415,000 • 3 bed • 1 bath • 334 ft²
3 bedroom detached house for sale in Saxon Grange,
Higher Blandford Road,
Shaftesbury,
Dorset,
SP7 8DA, SP7 — £335,000 • 3 bed • 1 bath • 358 ft²














































