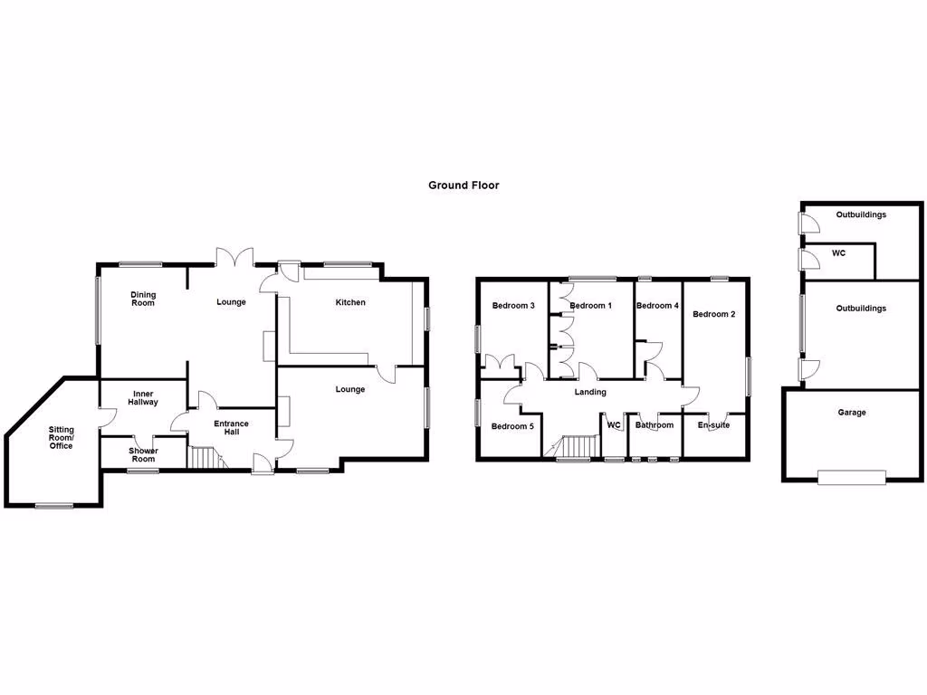
Spacious five-bedroom property with large garden, garage and workshop for versatile living.
- Five bedrooms and three reception rooms, flexible family layout
- Modern fitted kitchen alongside many original 1930s features
- Detached garage, large outbuilding/workshop with separate WC
- Boarded loft space and extensive driveway with secure gated access
- Large private rear garden with mature shrubs and patio
- Potential for separate annexe subject to correct planning permission
- Stone walls likely uninsulated — may need insulation/energy upgrades
- Council tax band described as expensive
A spacious 1930s detached property offering five bedrooms, three reception rooms and three bathrooms across generous living space. The house retains many original period features — fireplaces, high ceilings in places and a sense of old-world character — while benefiting from a modern fitted kitchen and upgraded bathrooms.
The long driveway, secure gated entrance and detached garage plus large outbuilding/workshop provide substantial parking and storage; the boarded loft offers further scope. The private, well-stocked rear garden and sizeable plot make this a rare find for those seeking outdoor space close to local amenities and good primary schools.
Practical considerations include an expensive council tax band and evidence the stone walls were built without insulation (may affect heating costs and improvement scope). There is potential to create a separate annexe from existing outbuildings or internal space, subject to obtaining the correct planning permission.
This property will suit buyers wanting a large family residence with character and flexibility — buyers should budget for energy-efficiency improvements and, if desired, any renovation or planning work to fully realise annexe potential.
5 bedroom detached house for sale in Haigh Moor Way, Aston Manor, Swallownest, Sheffield, S26 4SG, S26 — £525,000 • 5 bed • 3 bath • 1824 ft²
4 bedroom detached house for sale in Haigh Moor Way, Aston Manor, Swallownest, Sheffield, S26 4SG, S26 — £360,000 • 4 bed • 2 bath • 1170 ft²
3 bedroom semi-detached house for sale in The Chase, Aston, Sheffield, South Yorkshire, S26 — £270,000 • 3 bed • 1 bath • 1643 ft²
3 bedroom semi-detached house for sale in Windsor Rise, Aston, Sheffield, S26 2EW, S26 — £210,000 • 3 bed • 1 bath • 595 ft²
4 bedroom semi-detached house for sale in Eagle View, Aston, Sheffield, S26 2GL, S26 — £270,000 • 4 bed • 2 bath • 905 ft²
3 bedroom semi-detached house for sale in Elizabeth Road, Aston, Sheffield, S26 2BA, S26 — £220,000 • 3 bed • 1 bath • 1047 ft²






















































































































































